Ваш город:

Проект двухэтажного дома ЭКО 505

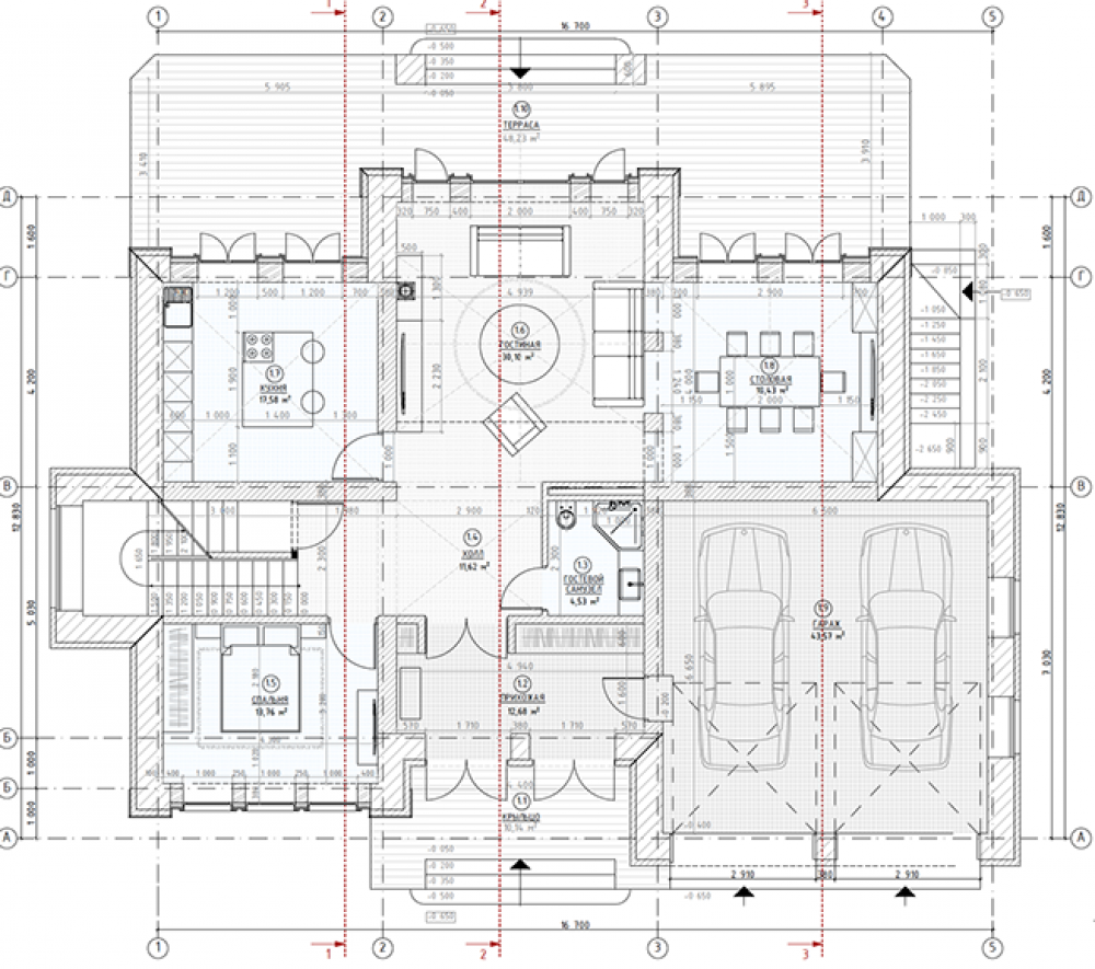
Площадь: 542 м2
Размер: 12x17
Дом подходит для:
Для большой семьи
Этажей:
3
Стены:
Кровля:
Металлочерепица
Цена:
Оставить заявку
Площадь
542 м 2
Размер дома:
12x17
Этажей:
3
Спален:
4
Санузел:
0
Гараж:
Нет
Баня:
Нет
Терраса:
Нет
Панорамные окна:
Нет
Мастер-спальня:
Нет
О проекте
Его дизайн подходит для города, сочетая стиль и практичность. 542 м² жилой площади — основа удобства и стиля. В доме предусмотрено 4 спальни, что важно для комфорта. Это трёхэтажная структура, которая обеспечивает практичное распределение комнат. Дом спроектирован в духе дома в стиле модерн.

Характеристики
  • Общая площадь: 542 м2
  • Количество этажей: 3
  • Стиль, разновидность: Дома в стиле Модерн
  • Форма: Квадратные дома
  • Тип кровли: Дома с четырехскатной крышей (вальмовой)
  • Отделка: Без отделки
  • Размер: 12x17
Отправьте свои контакты и мы расчитаем вам смету
Прикрепить документ
Скорее всего вам подойдут следующие проекты домов: