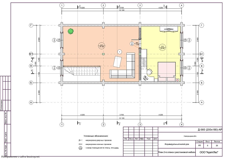
Проект двухэтажного дома Ермолино
Площадь
118 м 2
Размер дома:
9x10
Этажей:
2
Спален:
1
Санузел:
0
Гараж:
Нет
Баня:
Нет
Терраса:
Нет
Панорамные окна:
Нет
Мастер-спальня:
Нет
О проекте
Пространство, созданное для тех, кто ценит комфорт и красоту.Жить удобно на 160 м² — здесь всё на своих местах. В качестве кровли использована металлочерепица — материал, проверенный временем. Двухэтажная современная планировка разделяет приватные и общественные зоны. Конструкция из бруса обеспечивает прочность и долговечность.Характеристики
- Общая площадь: 118 м2
- Количество этажей: 2
- Стиль, разновидность: Дома в стиле Русский
- Форма: Прямоугольные дома
- Тип кровли: Дома с двускатной крышей
- Отделка: Без отделки
- Размер: 9x10
Отправьте свои контакты и мы расчитаем вам смету
Скорее всего вам подойдут следующие проекты домов:
Дом подходит для:
Дом подходит для:
Дом подходит для:











