Проект двухэтажного дома Грац
Площадь
268 м 2
Размер дома:
Этажей:
2
Спален:
4
Санузел:
0
Гараж:
Нет
Баня:
Нет
Терраса:
Нет
Панорамные окна:
Нет
Мастер-спальня:
Нет
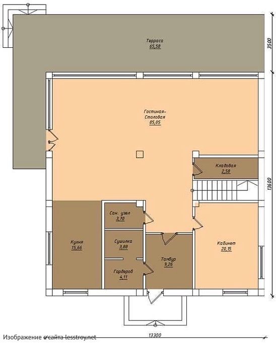
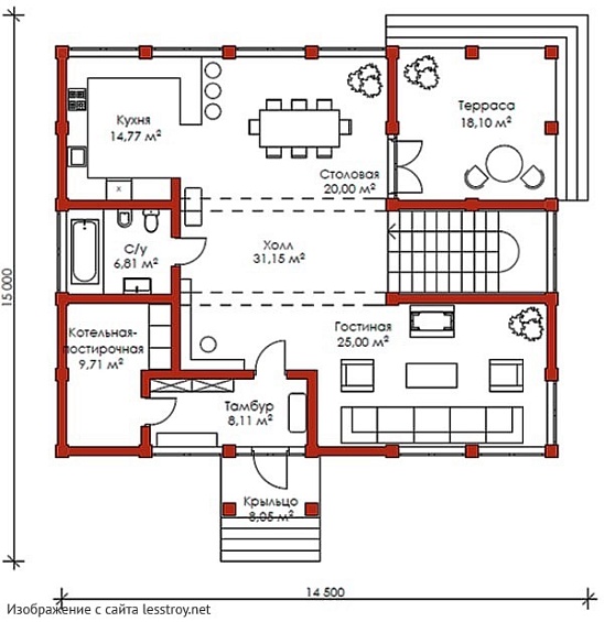
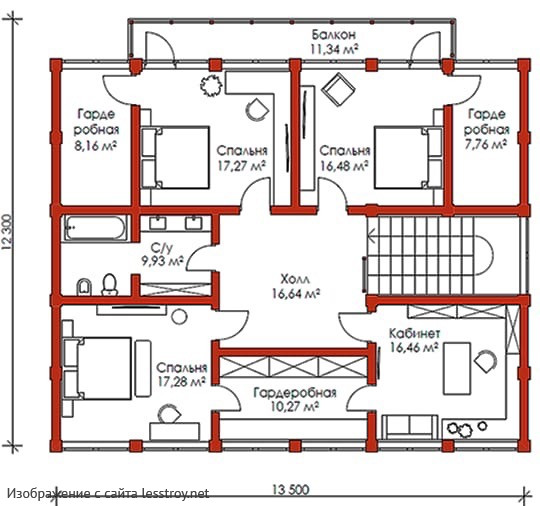
О проекте
Пространство, где инновационные строительные решения встречаются с домашним теплом. С 175 м² удобно и детям, и взрослым. В доме предусмотрено 4 спальни, что важно для комфорта. Двухэтажная рациональная планировка обеспечивает практичное распределение комнат. Битумная черепица придаёт дому выразительность и надёжность.Характеристики
- Общая площадь: 268 м2
- Количество этажей: 2
- Стиль, разновидность: Дома в стиле Фахверк
- Форма: Прямоугольные дома
- Тип кровли: Дома с мансардной крышей
- Отделка: Без отделки
Отправьте свои контакты и мы расчитаем вам смету
Скорее всего вам подойдут следующие проекты домов:
Дом подходит для:
Дом подходит для:
Дом подходит для:











