Проект двухэтажного дома ИЖС - 15
Дом подходит для:
Площадь
130 м 2
Размер дома:
17х12
Этажей:
2
Спален:
4
Санузел:
2
Гараж:
Нет
Баня:
Нет
Терраса:
Да
Панорамные окна:
Нет
Мастер-спальня:
Нет
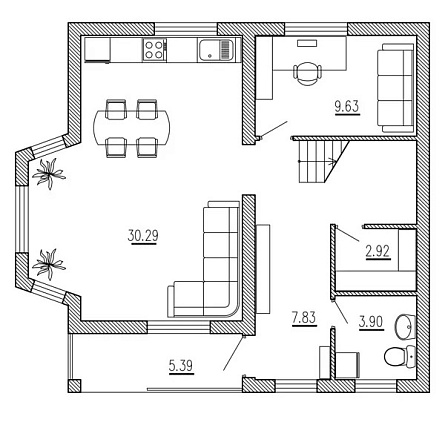
Планировка
Фасады
О проекте
Просторный дом площадью 130 м² из пенобетона предлагает комфортное решение для большой семьи. 118 м² жилой площади организованы рационально, создавая ощущение свободы и покоя. Современные материалы делают дом теплым и надежным, а продуманная планировка добавляет интерьеру гармонии. Это жилье, где простор сочетается с семейным уютом.Характеристики
- Общая площадь: 130 м2
- Жилая площадь: 118 м2
- Количество этажей: 2
- Гараж: нет
- Площадь кровли: 134 м2
- Стиль, разновидность: Дома в стиле Лофт
- Форма: Квадратные дома
- Тип кровли: Дома с двускатной крышей
- Пристрой: Дома с верандой
- Отделка: White box
- Отделка фасада: Дома с отделкой штукатуркой
- Фундамент: Дома с плитным фундаментом
Материалы и перечень работ
- Отсыпка подушки скалой фракции 0-300 мм
- Трамбовка основания грунтовым катком
- Монолитная плита 250 мм, арматура – металл
- Монтаж по проекту закладных под кабель и канализацию
- Скважина до 40 метров
- Блок 300 мм, D 500 – основные стены
- Блок 200 мм, 150 мм, 100 мм – перегородки
- Перекрытия по деревянным балкам с утеплением 200 мм
- Монолитные перекрытия
- Внутренняя штукатурка механизированным способом под обои
- Холодная крыша с утеплённым перекрытием – 200 мм, материал мягкая черепица, финишная подшивка карнизов с водосточной системой
- Окна: профиль 70 мм с наружной ламинацией
- Электрика: разводка по дому согласно типовым решениям
- Инженерные сети: ГВС, ХВС полностью по проекту
- Автономная канализация
- Отопление дома: котел, ЭППС 100 мм + тёплые полы (1 и 2 этаж) полусухая стяжка
- Вентиляция: приточно-вытяжная с рекуперацией воздуха от 300 м3
- Утепление и облицовочный кирпич
- Утепление на 100 мм, мокрый фасад короед с покраской на 2 раза. Цвет по согласованию с Заказчиком
- Отсыпка подушки скалой фракции 0-300 мм
- Трамбовка основания грунтовым катком
- Монолитная плита 250 мм, арматура – металл
- Монтаж по проекту закладных под кабель и канализацию
- Скважина до 40 метров
- Блок 300 мм, D 500 – основные стены
- Блок 200 мм, 150 мм, 100 мм – перегородки
- Перекрытия по деревянным балкам с утеплением 200 мм
- Монолитные перекрытия
- Внутренняя штукатурка механизированным способом под обои
- Холодная крыша с утеплённым перекрытием – 200 мм, материал мягкая черепица, финишная подшивка карнизов с водосточной системой
- Окна: профиль 70 мм с наружной ламинацией
- Электрика: разводка по дому согласно типовым решениям
- Инженерные сети: ГВС, ХВС полностью по проекту
- Автономная канализация
- Отопление дома: котел, ЭППС 100 мм + тёплые полы (1 и 2 этаж) полусухая стяжка
- Вентиляция: приточно-вытяжная с рекуперацией воздуха от 300 м3
- Утепление и облицовочный кирпич
- Утепление на 100 мм, мокрый фасад короед с покраской на 2 раза. Цвет по согласованию с Заказчиком
Что еще входит в стоимость:
Отправьте свои контакты и мы расчитаем вам смету
Скорее всего вам подойдут следующие проекты домов:
Проект двухэтажного дома ИСЖ-2
Для большой семьи
Дом подходит для:
Дом подходит для:



