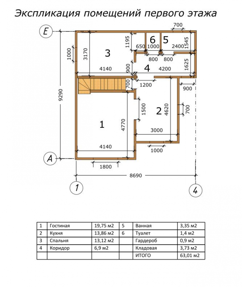
Проект двухэтажного дома Каркасный дом 120 м2. 2013 год
Площадь
120 м 2
Размер дома:
8x9
Этажей:
2
Спален:
3
Санузел:
0
Гараж:
Нет
Баня:
Нет
Терраса:
Нет
Панорамные окна:
Нет
Мастер-спальня:
Нет
О проекте
Дом отличается стильным дизайном и продуманной организацией семейного быта.Дом с 86 м² даёт ощущение гармонии. Конструкция из бревна обеспечивает прочность и долговечность. Крыша из рубероид подчёркивает современный облик дома. Двухэтажная уютная планировка обеспечивает практичное распределение комнат.Характеристики
- Общая площадь: 120 м2
- Количество этажей: 2
- Стиль, разновидность: Дома в ином стиле
- Тип кровли: Дома с двускатной крышей
- Отделка: Без отделки
- Размер: 8x9
Отправьте свои контакты и мы расчитаем вам смету
Скорее всего вам подойдут следующие проекты домов:
Дом подходит для:
Дом подходит для:
Дом подходит для:










