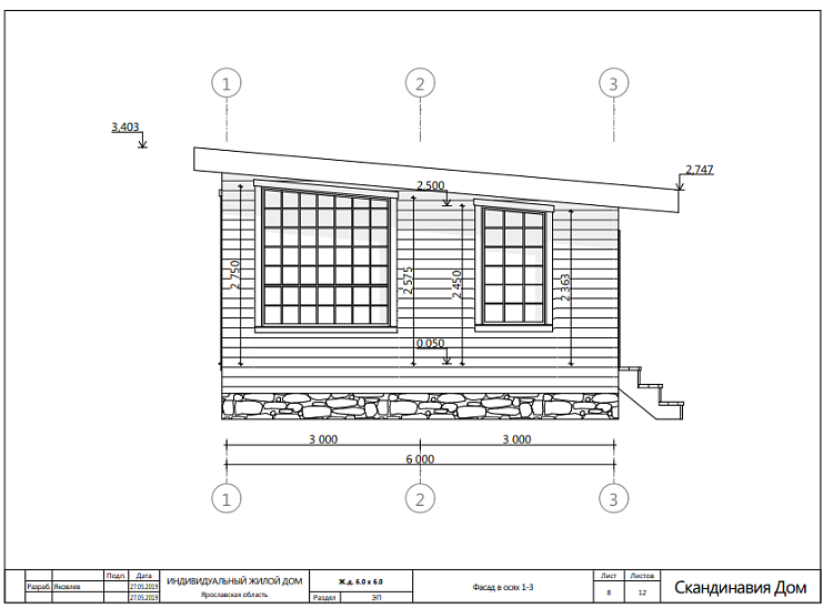
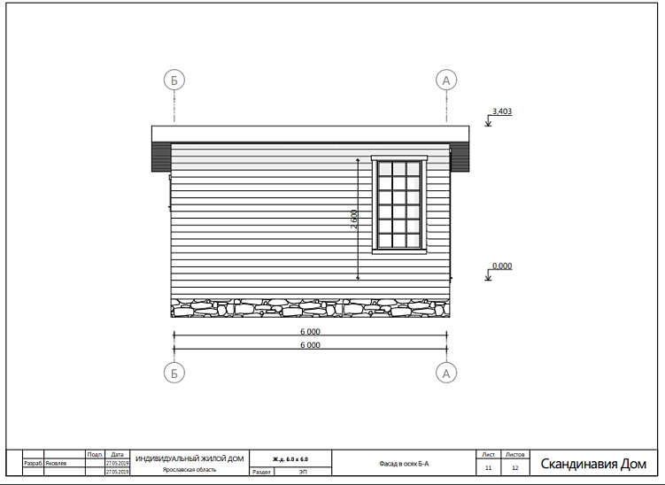
Проект одноэтажного дома Каркасный дом 6x6, Проект КД-34
Площадь
31 м 2
Размер дома:
6x6
Этажей:
1
Спален:
1
Санузел:
0
Гараж:
Нет
Баня:
Нет
Терраса:
Нет
Панорамные окна:
Нет
Мастер-спальня:
Нет
О проекте
Каркасный дом площадью 31 м² — это компактное и экономичное решение для загородного отдыха. Несмотря на небольшие размеры, проект включает все необходимое для комфортного проживания. Современные материалы обеспечивают тепло и уют даже в холодное время года. Идеальный вариант для тех, кто ищет минимализм и практичность.Характеристики
- Общая площадь: 31 м2
- Количество этажей: 1
- Стиль, разновидность: Дома в ином стиле
- Форма: Прямоугольные дома
- Тип кровли: Дома с двускатной крышей
- Отделка: Без отделки
- Размер: 6x6
Отправьте свои контакты и мы расчитаем вам смету
Скорее всего вам подойдут следующие проекты домов:
Дом подходит для:
Дом подходит для:
Дом подходит для:














