Проект двухэтажного дома Каркасный дом Семейный
Площадь
190 м 2
Размер дома:
11x9
Этажей:
2
Спален:
2
Санузел:
0
Гараж:
Нет
Баня:
Нет
Терраса:
Нет
Панорамные окна:
Нет
Мастер-спальня:
Нет
О проекте
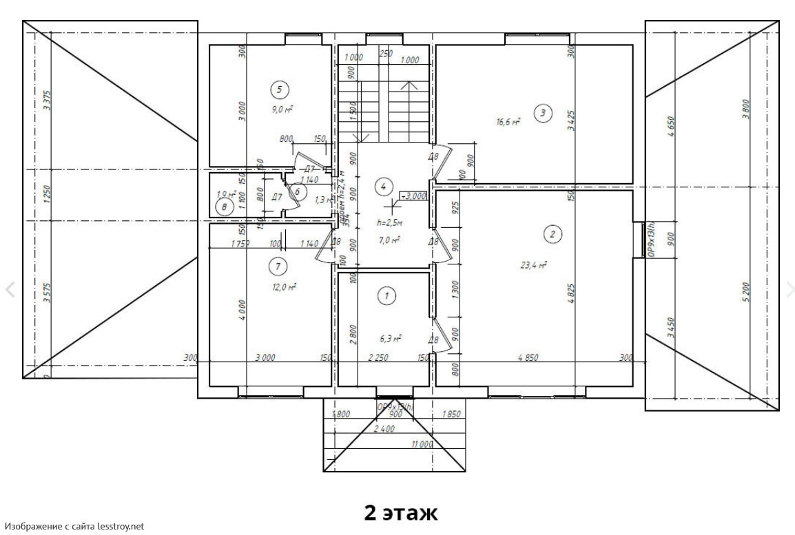
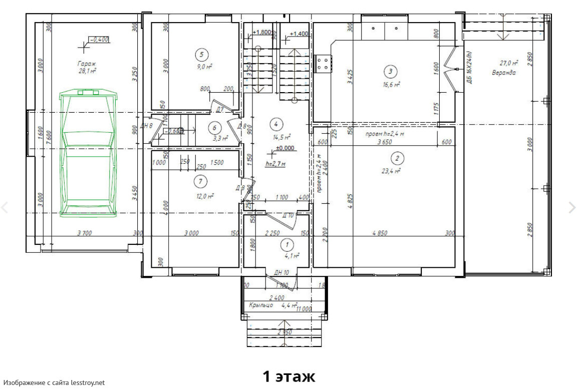
Стильный и функциональный интерьер, создающий ощущение уюта. В этих 145 м² легко организовать рабочую и зону отдыха. металлочерепица придаёт дому выразительность и надёжность. Количество спален — 2, делая планировку гибкой. Стены из бревна хорошо держат тепло и защищают от шума.Характеристики
- Общая площадь: 190 м2
- Количество этажей: 2
- Стиль, разновидность: Дома в стиле Модерн
- Форма: Прямоугольные дома
- Тип кровли: Дома с четырехскатной крышей (вальмовой)
- Отделка: Без отделки
- Размер: 11x9
Отправьте свои контакты и мы расчитаем вам смету
Скорее всего вам подойдут следующие проекты домов:
Дом подходит для:
Дом подходит для:
Проект двухэтажного дома Дом из СИП-панелей ЛЕГЕНДА 154 м.кв.
Семья с двумя детьми
Дом подходит для:
Дом подходит для:














