Проект одноэтажного дома Карнеги 178
Дом подходит для:
Площадь
178 м 2
Размер дома:
11,5 х 15,5
Этажей:
1
Спален:
3
Санузел:
2
Гараж:
Нет
Баня:
Нет
Терраса:
Нет
Панорамные окна:
Нет
Мастер-спальня:
Нет
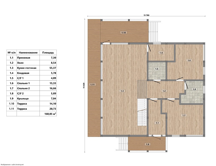
Планировка
Фасады
О проекте
Дом площадью 178 м² с жилой зоной 126 м² создан для тех, кто ценит стиль и простор. Каркасные стены обеспечивают тепло и тишину, а светлые интерьеры наполнены уютом. Продуманная планировка делает пространство функциональным и удобным для повседневной жизни. Здесь царит атмосфера спокойствия и гармонии.Характеристики
- Общая площадь: 178 м2
- Жилая площадь: 126 м2
- Количество этажей: 1
- Гараж: нет
- Площадь кровли: 184 м2
- Отделка: Без отделки
- Фундамент: Дома со свайным фундаментом
Материалы и перечень работ
- Фундамент - железобетонные забивные сваи
- Стены, стропильная система - калиброванная сухая строганная доска камерной сушки, шаг стоек и стропил 400 мм, жёсткость каркаса обеспечивается плитами OSВ-3
- Все деревянные конструкции обрабатываются огнебиозащитой
- Межэтажное перекрытие - деревянные двутавровые клееные усиленные балки с шагом 400 мм
- Утепление - минераловатный утеплитель, толщина 200-300 мм
- Звукоизоляция всех внутренних стен и перекрытий
- Кровля - гибкая черепица / металлочерепица / клик-фальц
- Снегостопоры, водосточная система
- Кровельные вентиляционные проходы для кухни, котельной и санузлов
- Подшив свесов кровли - соффиты с перфорацией / деревянная отделка
- Окна - 5-камерный ПВХ профиль, 2-камерный стекло-пакет (3 стекла) с тонировкой, москитные сетки
- Металлическая утепленная входная дверь с термо-разрывом
- В стоимость не входит
- Внешняя отделка - дерево / металлический сайдинг
- Цокольные и оконные отливы - металл, полиэстер
- Крыльцо и терраса с лестницами, полы и поручень ограждения из лиственницы
- Внешняя светодиодная подсветка дома
- Фундамент - железобетонные забивные сваи
- Стены, стропильная система - калиброванная сухая строганная доска камерной сушки, шаг стоек и стропил 400 мм, жёсткость каркаса обеспечивается плитами OSВ-3
- Все деревянные конструкции обрабатываются огнебиозащитой
- Межэтажное перекрытие - деревянные двутавровые клееные усиленные балки с шагом 400 мм
- Утепление - минераловатный утеплитель, толщина 200-300 мм
- Звукоизоляция всех внутренних стен и перекрытий
- Кровля - гибкая черепица / металлочерепица / клик-фальц
- Снегостопоры, водосточная система
- Кровельные вентиляционные проходы для кухни, котельной и санузлов
- Подшив свесов кровли - соффиты с перфорацией / деревянная отделка
- Окна - 5-камерный ПВХ профиль, 2-камерный стекло-пакет (3 стекла) с тонировкой, москитные сетки
- Металлическая утепленная входная дверь с термо-разрывом
- В стоимость не входит
- Внешняя отделка - дерево / металлический сайдинг
- Цокольные и оконные отливы - металл, полиэстер
- Крыльцо и терраса с лестницами, полы и поручень ограждения из лиственницы
- Внешняя светодиодная подсветка дома
Что еще входит в стоимость:
Отправьте свои контакты и мы расчитаем вам смету
Скорее всего вам подойдут следующие проекты домов:
Дом подходит для:
Дом подходит для:
Дом подходит для:












