Проект двухэтажного дома КБ-ЖД-2-140,1
Площадь
140 м 2
Размер дома:
Этажей:
2
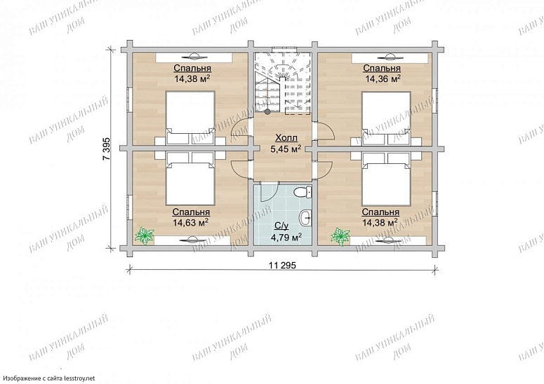
Спален:
3
Санузел:
0
Гараж:
Нет
Баня:
Нет
Терраса:
Нет
Панорамные окна:
Нет
Мастер-спальня:
Нет
О проекте
Дом спроектирован с учетом всех аспектов современного образа жизни.Жить в 56 м² — это удобно, красиво и рационально. Материал кровли — металлочерепица, что добавляет зданию индивидуальность. Архитектура выполнена в стиле дома в стиле русский. Это двухэтажная структура, которая обеспечивает практичное распределение комнат.Характеристики
- Общая площадь: 140 м2
- Количество этажей: 2
- Стиль, разновидность: Дома в стиле Шале
- Форма: Прямоугольные дома
- Тип кровли: Дома с двускатной крышей
- Отделка: Без отделки
Отправьте свои контакты и мы расчитаем вам смету
Скорее всего вам подойдут следующие проекты домов:
Дом подходит для:
Дом подходит для:
Дом подходит для:











