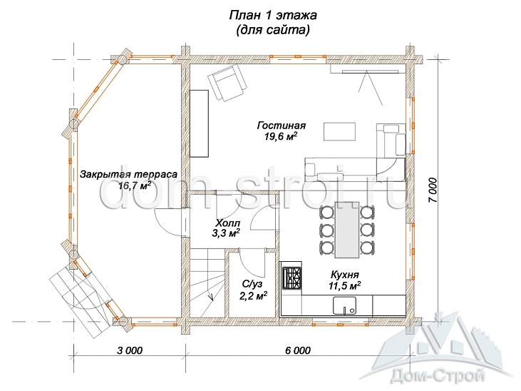
Проект двухэтажного дома Кинерма
Площадь
97 м 2
Размер дома:
7x8
Этажей:
2
Спален:
2
Санузел:
0
Гараж:
Нет
Баня:
Нет
Терраса:
Нет
Панорамные окна:
Нет
Мастер-спальня:
Нет
О проекте
Дом выглядит как концепт из будущего, но пахнет домашней выпечкой.Дом продуман на 175 м² до последнего сантиметра. Рубероид придаёт дому выразительность и надёжность. Архитектура выполнена в стиле дома в стиле прованс. В доме предусмотрено 2 спальни, что важно для комфорта.Характеристики
- Общая площадь: 97 м2
- Количество этажей: 2
- Стиль, разновидность: Дома в стиле Русский
- Форма: Прямоугольные дома
- Тип кровли: Дома с двускатной крышей
- Отделка: Без отделки
- Размер: 7x8













