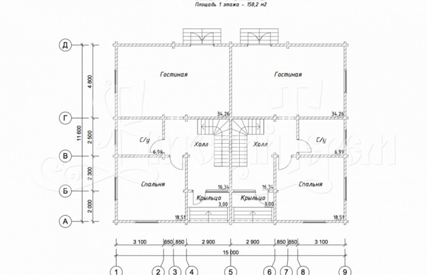
Проект одноэтажного дома Корвет
Площадь
263 м 2
Размер дома:
Этажей:
1
Спален:
0
Санузел:
0
Гараж:
Нет
Баня:
Нет
Терраса:
Нет
Панорамные окна:
Нет
Мастер-спальня:
Нет
О проекте
Дом, где домашние дела приносят удовольствие 263 м² под одной крышей — всё необходимое здесь. Одноэтажная просторная планировка разграничивает спальные и дневные помещения. Дом спроектирован в духе дома в классическом стиле. В качестве кровли использована металлочерепица — материал, проверенный временем.Характеристики
- Общая площадь: 263 м2
- Количество этажей: 1
- Стиль, разновидность: Дома в ином стиле
- Тип кровли: Дома с иной крышей
- Отделка: Без отделки
Отправьте свои контакты и мы расчитаем вам смету
Скорее всего вам подойдут следующие проекты домов:
Дом подходит для:
Дом подходит для:
Дом подходит для:










