Проект двухэтажного дома Коттедж из клееного бруса МОРСКОЙ ЖЕМЧУГ-183 от компании МОГУТА
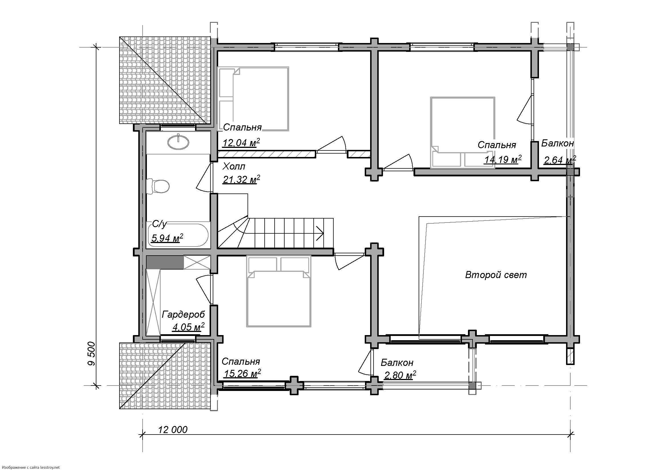
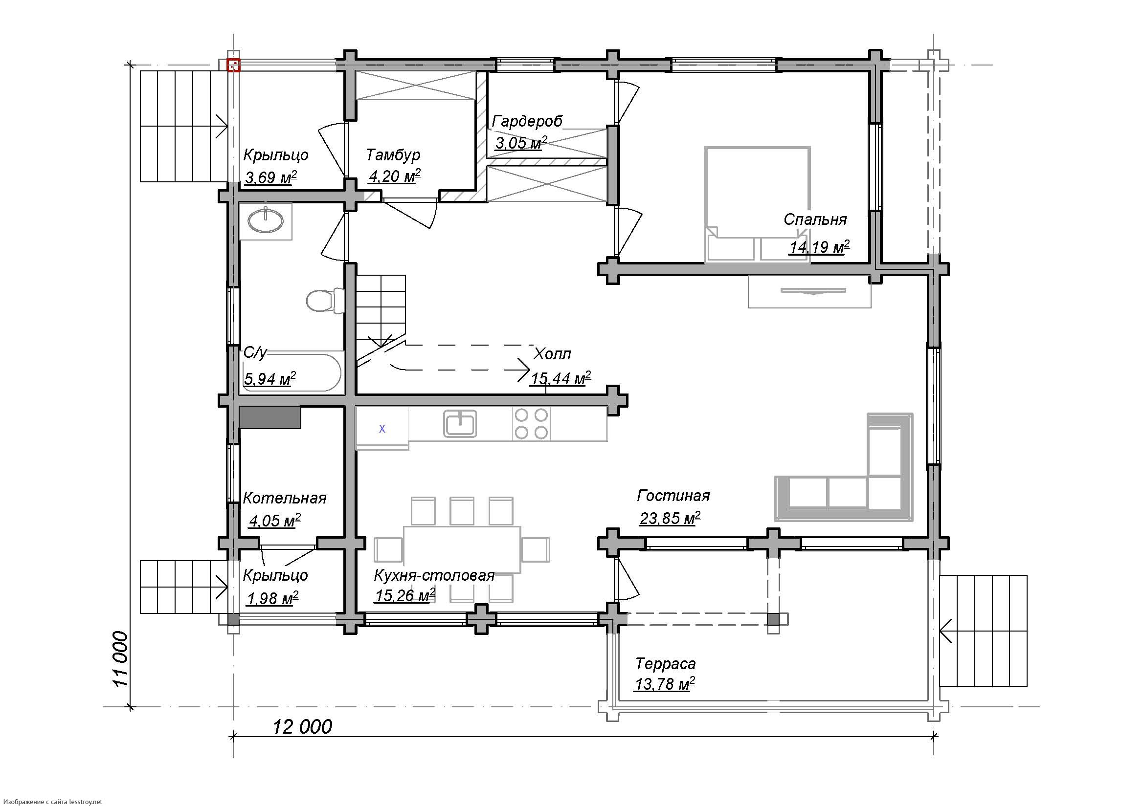
Площадь
183 м 2
Размер дома:
11x12
Этажей:
2
Спален:
4
Санузел:
0
Гараж:
Нет
Баня:
Нет
Терраса:
Нет
Панорамные окна:
Нет
Мастер-спальня:
Нет
О проекте
Проект превращает здание в символ нового времени и семейных уз. 60 м² идеально подойдут для семейных посиделок и личного пространства. Проект включает 2 спальни — удобно для семьи. В качестве кровли использована композитная черепица — материал, проверенный временем. Выбор каркаса обусловлен его теплоизоляционными свойствами.Характеристики
- Общая площадь: 183 м2
- Количество этажей: 2
- Стиль, разновидность: Дома в стиле Модерн
- Форма: Прямоугольные дома
- Тип кровли: Дома с многощипцовой крышей
- Отделка: Без отделки
- Размер: 11x12
Отправьте свои контакты и мы расчитаем вам смету
Скорее всего вам подойдут следующие проекты домов:
Дом подходит для:
Дом подходит для:
Дом подходит для:









