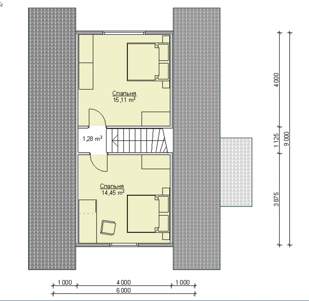
Проект двухэтажного дома Крепость
Площадь
94 м 2
Размер дома:
6x9
Этажей:
2
Спален:
3
Санузел:
0
Гараж:
Нет
Баня:
Нет
Терраса:
Нет
Панорамные окна:
Нет
Мастер-спальня:
Нет
О проекте
Дом площадью 94 м² из бруса с металлочерепичной кровлей рассчитан на комфортное проживание семьи. Три спальни обеспечивают достаточно места для всех членов семьи. Двухэтажная конструкция позволяет рационально использовать пространство. Натуральные материалы и лаконичный дизайн подчёркивают эстетику загородной жизни.Характеристики
- Общая площадь: 94 м2
- Количество этажей: 2
- Стиль, разновидность: Дома в ином стиле
- Форма: Прямоугольные дома
- Тип кровли: Дома с двускатной крышей
- Отделка: Без отделки
- Размер: 6x9
Отправьте свои контакты и мы расчитаем вам смету
Скорее всего вам подойдут следующие проекты домов:
Дом подходит для:
Дом подходит для:
Дом подходит для:














