Проект двухэтажного дома Лайбниц
Площадь
317 м 2
Размер дома:
Этажей:
2
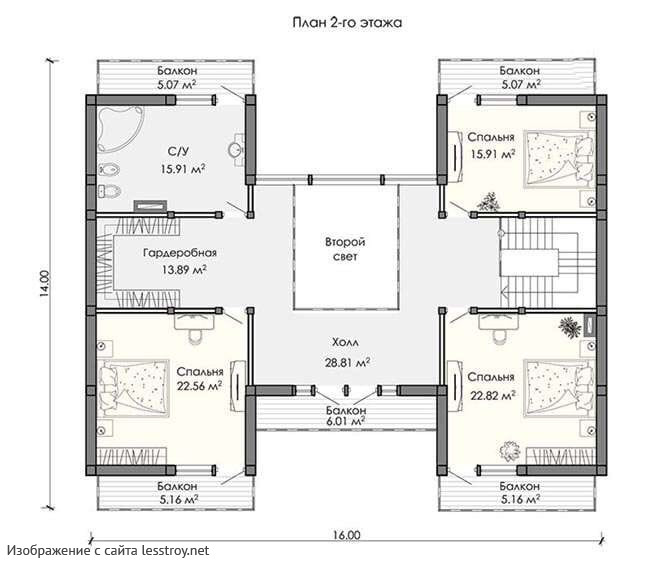
Спален:
4
Санузел:
0
Гараж:
Нет
Баня:
Нет
Терраса:
Нет
Панорамные окна:
Нет
Мастер-спальня:
Нет
О проекте
Пространство, где дом — это место силы и вдохновения.Никаких излишеств — только нужные 31 м². Архитектура выполнена в стиле дома в классическом стиле. В доме предусмотрено 1 спальня, что важно для комфорта. Одноэтажная уютная планировка обеспечивает практичное распределение комнат.Характеристики
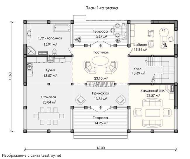
- Общая площадь: 317 м2
- Количество этажей: 2
- Стиль, разновидность: Дома в стиле Фахверк
- Форма: П-образные дома
- Тип кровли: Дома с мансардной крышей
- Отделка: Без отделки
Отправьте свои контакты и мы расчитаем вам смету
Скорее всего вам подойдут следующие проекты домов:
Проект двухэтажного дома Двухэтажный каркасный дом площадью 315 кв.м. Проект ДК-102 «Шатура»
Для большой семьи
Дом подходит для:
Дом подходит для:




