Проект двухэтажного дома Лосиный остров
Площадь
103 м 2
Размер дома:
6x9
Этажей:
2
Спален:
3
Санузел:
0
Гараж:
Нет
Баня:
Нет
Терраса:
Нет
Панорамные окна:
Нет
Мастер-спальня:
Нет
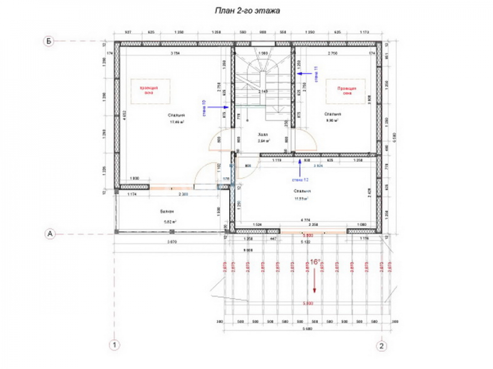
О проекте
Архитектура, которая делает жизнь более комфортной. Дом объёмом 103 м² — пример грамотного проектирования. Это двухэтажная структура, которая разграничивает спальные и дневные помещения. Выбор Каркас обусловлен его теплоизоляционными свойствами. Дом спроектирован в духе дома в классическом стиле.Характеристики
- Общая площадь: 103 м2
- Количество этажей: 2
- Стиль, разновидность: Дома в ином стиле
- Форма: Прямоугольные дома
- Тип кровли: Дома с двускатной крышей
- Отделка: Без отделки
- Размер: 6x9
Отправьте свои контакты и мы расчитаем вам смету
Скорее всего вам подойдут следующие проекты домов:
Дом подходит для:
Дом подходит для:
Дом подходит для:











