Проект двухэтажного дома ЛЮБАВА КИРПИЧ
Площадь
108 м 2
Размер дома:
Этажей:
2
Спален:
4
Санузел:
0
Гараж:
Нет
Баня:
Нет
Терраса:
Нет
Панорамные окна:
Нет
Мастер-спальня:
Нет
О проекте
Жилое пространство, дарящее одновременно простор и камерность. С 210 м² удобно и детям, и взрослым. Архитектура выполнена в стиле дома в классическом стиле. металлочерепица придаёт дому выразительность и надёжность. Двухэтажная просторная планировка обеспечивает комфортную навигацию внутри дома.Характеристики
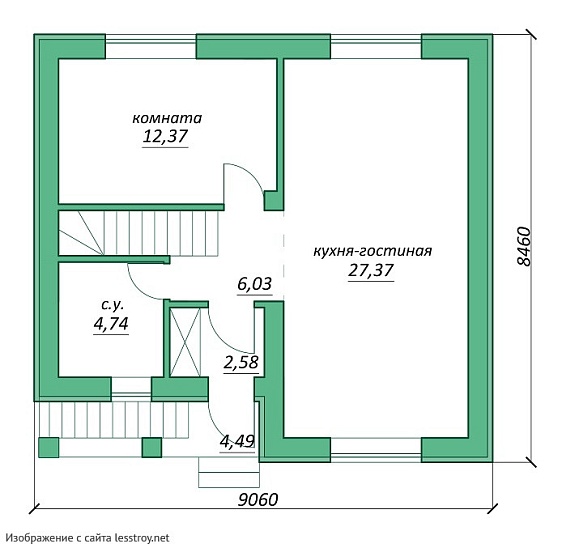
- Общая площадь: 108 м2
- Количество этажей: 2
- Стиль, разновидность: Дома в ином стиле
- Тип кровли: Дома с двускатной крышей
- Отделка: Без отделки
Отправьте свои контакты и мы расчитаем вам смету
Скорее всего вам подойдут следующие проекты домов:
Дом подходит для:
Дом подходит для:
Дом подходит для:











