Проект двухэтажного дома Мергусово
Площадь
140 м 2
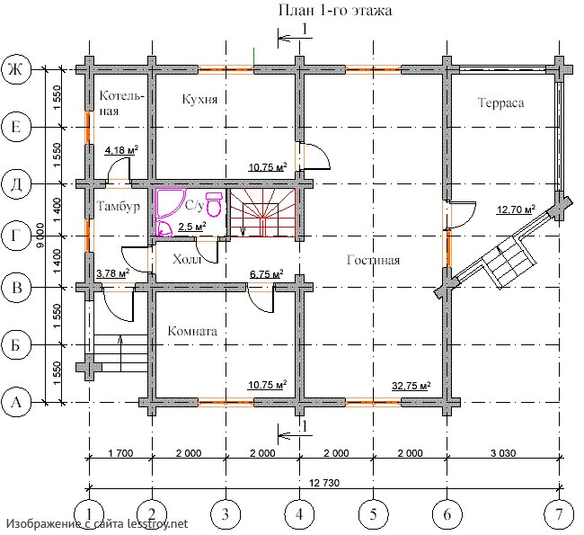
Размер дома:
8x9
Этажей:
2
Спален:
4
Санузел:
0
Гараж:
Нет
Баня:
Нет
Терраса:
Нет
Панорамные окна:
Нет
Мастер-спальня:
Нет
О проекте
Проект создает выразительный экстерьер и практичные условия для проживания.Рационально распределённые 131 м² делают жильё удобным. Архитектура выполнена в стиле дома в стиле русский. Количество спален — 2, делая планировку гибкой. Бруса делает дом надёжным при любой погоде.Характеристики
- Общая площадь: 140 м2
- Количество этажей: 2
- Стиль, разновидность: Дома в стиле Шале
- Форма: Прямоугольные дома
- Тип кровли: Дома с двускатной крышей
- Отделка: Без отделки
- Размер: 8x9
Отправьте свои контакты и мы расчитаем вам смету
Скорее всего вам подойдут следующие проекты домов:
Дом подходит для:
Проект двухэтажного дома Коттедж из оцилиндрованного бревна. Проект Ветрово.
Для большой семьи
Дом подходит для:
Дом подходит для:
Дом подходит для:











