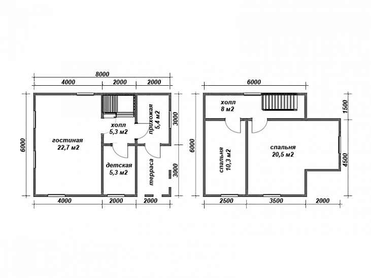
Проект одноэтажного дома НЕВА 1
Площадь
69 м 2
Размер дома:
6x7
Этажей:
1
Спален:
2
Санузел:
0
Гараж:
Нет
Баня:
Нет
Терраса:
Нет
Панорамные окна:
Нет
Мастер-спальня:
Нет
О проекте
Проект соединил математическую точность с поэзией домашнего быта. Объём внутреннего пространства — 155 м² — создаёт ощущение уюта. Архитектура выполнена в стиле дома в стиле модерн. Двухэтажная уютная планировка создаёт идеальные условия для жизни всей семьи. Материал кровли — металлочерепица, что добавляет зданию индивидуальность.Характеристики
- Общая площадь: 69 м2
- Количество этажей: 1
- Стиль, разновидность: Дома в стиле Модерн
- Форма: Прямоугольные дома
- Тип кровли: Дома с двускатной крышей
- Отделка: Без отделки
- Размер: 6x7












