Проект одноэтажного дома Новороссийск
Площадь
76 м 2
Размер дома:
9x9
Этажей:
1
Спален:
2
Санузел:
0
Гараж:
Нет
Баня:
Нет
Терраса:
Нет
Панорамные окна:
Нет
Мастер-спальня:
Нет
О проекте
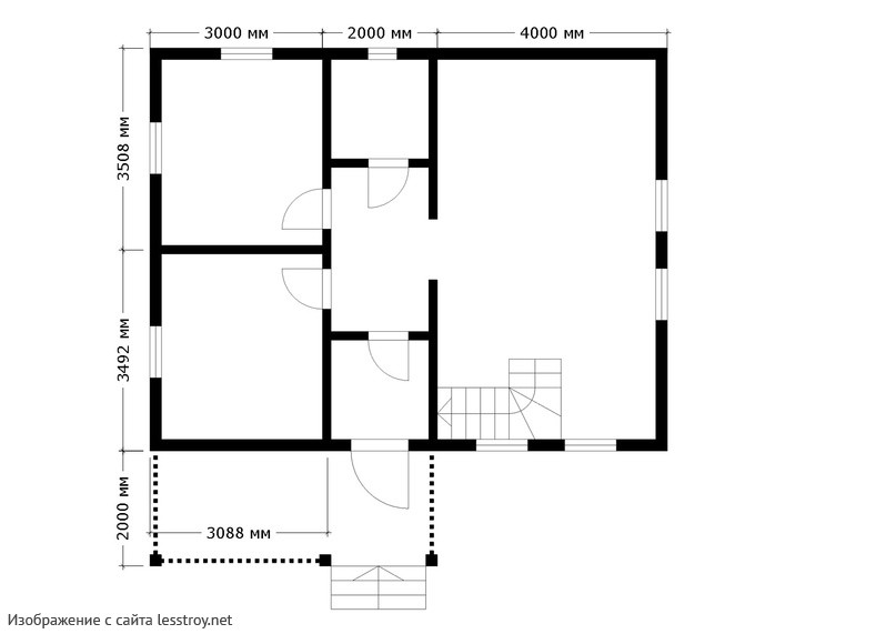
Этот дом создан для тех, кто ценит тишину и размеренный образ жизни. Площадь 76 м² открывает простор для креативных решений. Проект включает 2 спальни — удобно для семьи. В качестве кровли использована металлочерепица — материал, проверенный временем. Выбор Каркас обусловлен его теплоизоляционными свойствами.Характеристики
- Общая площадь: 76 м2
- Количество этажей: 1
- Стиль, разновидность: Дома в ином стиле
- Форма: Квадратные дома
- Тип кровли: Дома с иной крышей
- Отделка: Без отделки
- Размер: 9x9
Отправьте свои контакты и мы расчитаем вам смету
Скорее всего вам подойдут следующие проекты домов:
Дом подходит для:
Дом подходит для:
Дом подходит для:








