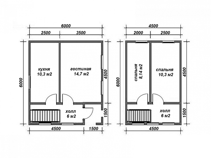
Проект одноэтажного дома Одноэтажный дом из бруса 6 на 8 (Проект Д-7)
Площадь
48 м 2
Размер дома:
6x8
Этажей:
1
Спален:
2
Санузел:
0
Гараж:
Нет
Баня:
Нет
Терраса:
Нет
Панорамные окна:
Нет
Мастер-спальня:
Нет
О проекте
Вам понравится проводить свободное время в этой уютной атмосфере.91 м², где всё логично, удобно и на месте. Выбор газобетон обусловлен его теплоизоляционными свойствами. Материал кровли — металлочерепица, что добавляет зданию индивидуальность. Количество спален — 3, делая планировку гибкой.Характеристики
- Общая площадь: 48 м2
- Количество этажей: 1
- Стиль, разновидность: Дома в стиле Русский
- Форма: Прямоугольные дома
- Тип кровли: Дома с двускатной крышей
- Отделка: Без отделки
- Размер: 6x8











