Проект одноэтажного дома Оливер-1
Дом подходит для:
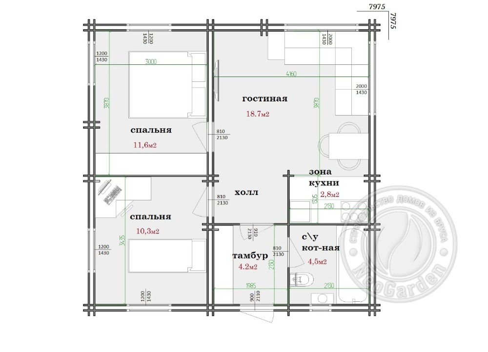
Площадь
52 м 2
Размер дома:
8x8
Этажей:
1
Спален:
2
Санузел:
1
Гараж:
Нет
Баня:
Нет
Терраса:
Нет
Панорамные окна:
Нет
Мастер-спальня:
Нет
Планировка
Характеристики
- Общая площадь: 52 м2
- Жилая площадь: 40 м2
- Количество этажей: 1
- Гараж: нет
- Площадь кровли: 58 м2
- Форма: Квадратные дома
- Тип кровли: Дома с двускатной крышей
- Отделка: Без отделки
- Отделка фасада: Дома с отделкой имитацией бруса
- Размер: 8x8
Материалы и перечень работ
- В стоимость не входит
- Стены состоят из двух сухих мини-брусьев 45х135мм, между ними утеплитель Эковата 100 мм
- Направляющие внутри стен, в дверные и оконные проемы из доски 50х100мм
- Перегородки из одинарного минибруса 45мм (в дальнейшем можно дополнительно утеплить)
- Чистовой пол - Quick Deck Professional 22мм
- Утепление пола Эковатой, толщина 200 мм
- Отделка крыши с внутренней стороны имитацией бруса 18мм, зашивка под конёк
- Утепление крыши 200мм Paroc
- Окна металлопластиковые, двухкамерные стеклопакеты, белые
- Дверь входная металлическая
- В стоимость не входит
- В стоимость не входит
- В стоимость не входит
- Стены состоят из двух сухих мини-брусьев 45х135мм, между ними утеплитель Эковата 100 мм
- Направляющие внутри стен, в дверные и оконные проемы из доски 50х100мм
- Перегородки из одинарного минибруса 45мм (в дальнейшем можно дополнительно утеплить)
- Чистовой пол - Quick Deck Professional 22мм
- Утепление пола Эковатой, толщина 200 мм
- Отделка крыши с внутренней стороны имитацией бруса 18мм, зашивка под конёк
- Утепление крыши 200мм Paroc
- Окна металлопластиковые, двухкамерные стеклопакеты, белые
- Дверь входная металлическая
- В стоимость не входит
- В стоимость не входит
Что еще входит в стоимость:
Отправьте свои контакты и мы расчитаем вам смету
Скорее всего вам подойдут следующие проекты домов:
Дом подходит для:
Дом подходит для:
Дом подходит для:











