Проект двухэтажного дома Осень СБ-4
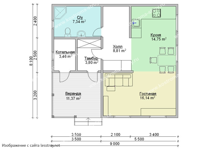
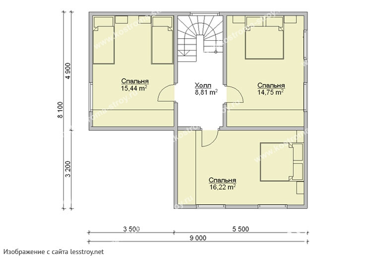
Площадь
125 м 2
Размер дома:
8x9
Этажей:
2
Спален:
3
Санузел:
0
Гараж:
Нет
Баня:
Нет
Терраса:
Нет
Панорамные окна:
Нет
Мастер-спальня:
Нет
О проекте
Здесь дизайн говорит на языке будущего, а атмосфера — о доме. Дом объёмом 31 м² — пример грамотного проектирования. В доме предусмотрено 1 спальня, что важно для комфорта. Архитектура выполнена в стиле дома в классическом стиле. Стены из бруса хорошо держат тепло и защищают от шума.Характеристики
- Общая площадь: 125 м2
- Количество этажей: 2
- Стиль, разновидность: Дома в стиле Русский
- Форма: Прямоугольные дома
- Тип кровли: Дома с многощипцовой крышей
- Отделка: Без отделки
- Размер: 8x9
Отправьте свои контакты и мы расчитаем вам смету
Скорее всего вам подойдут следующие проекты домов:
Дом подходит для:
Проект двухэтажного дома Дом из клееного бруса с террасой и балконом. Проект Светово.
Для большой семьи
Дом подходит для:
Дом подходит для:
Дом подходит для:











