Проект двухэтажного дома П-05/123
Площадь
123 м 2
Размер дома:
8x8
Этажей:
2
Спален:
3
Санузел:
0
Гараж:
Нет
Баня:
Нет
Терраса:
Нет
Панорамные окна:
Нет
Мастер-спальня:
Нет
О проекте
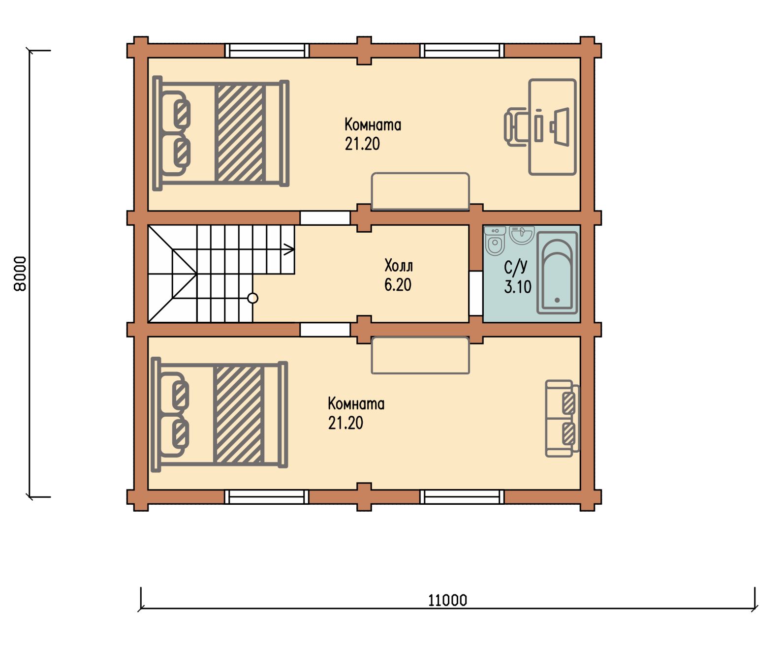
Жилище, созданное для любителей домашних киносеансов. 123 м² — идеальная отправная точка для домашнего уюта. Дом спроектирован в духе дома в стиле русский. Конструкция из бревна обеспечивает прочность и долговечность. В качестве кровли использована металлочерепица — материал, проверенный временем.Характеристики
- Общая площадь: 123 м2
- Количество этажей: 2
- Стиль, разновидность: Дома в стиле Русский
- Форма: Прямоугольные дома
- Тип кровли: Дома с двускатной крышей
- Отделка: Без отделки
- Размер: 8x8
Отправьте свои контакты и мы расчитаем вам смету
Скорее всего вам подойдут следующие проекты домов:
Дом подходит для:
Дом подходит для:
Дом подходит для:












