Проект одноэтажной бани П336
Дом подходит для:
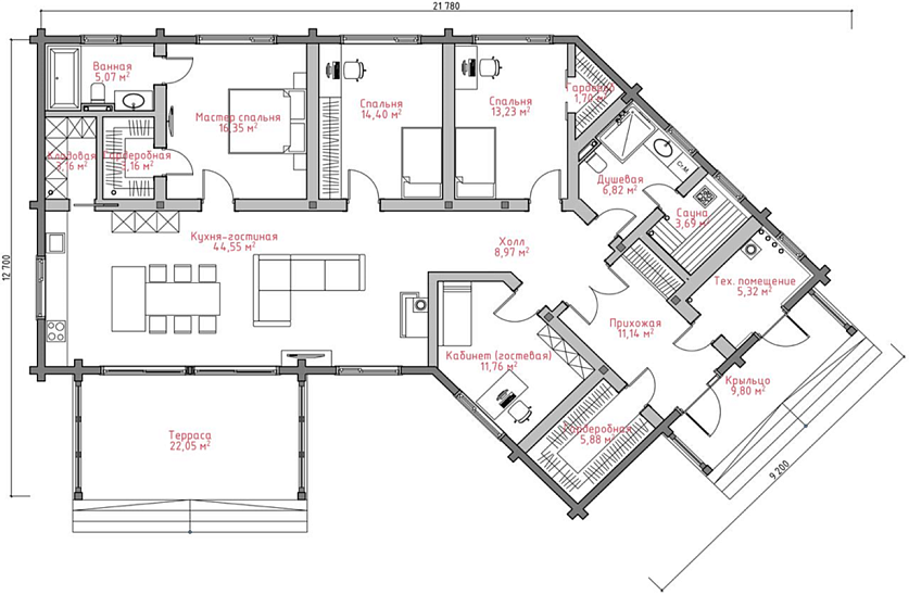
Площадь
186 м 2
Размер дома:
10.9x17.1
Этажей:
1
Спален:
3
Санузел:
2
Гараж:
Нет
Баня:
Нет
Терраса:
Да
Панорамные окна:
Нет
Мастер-спальня:
Нет
Планировка
Фасады
О проекте
Дом П336 площадью 186 м² с жилыми 132 м² — это гармония уюта и функциональности. Брус в стенах создает теплую атмосферу, а металлочерепица на крыше гарантирует защиту. Три спальни и два санузла делают его идеальным для семьи. Свайный фундамент завершает образ этого добротного жилья.Характеристики
- Общая площадь: 186.19 м2
- Жилая площадь: 132 м2
- Количество этажей: 1
- Гараж: нет
- Площадь кровли: 195 м2
- Стиль, разновидность: Дома в стиле Лофт
- Форма: Квадратные дома
- Тип кровли: Дома с двускатной крышей
- Пристрой: Дома с террасой
- Отделка: Без отделки
- Фундамент: Дома со свайным фундаментом
Материалы и перечень работ
- Фундамент: железобетонные забивные сваи 150х150 с оголовком по спец. заказу Рубкофф Ростверк 200х200 лиственница (антисептированный), геология и привязка: все включено.
- Стены: из клееного бруса 200х185 (экспортный клей, европейская сертификация). Лаги этажей, все необходимые материалы (включая узлы силы, rothoblaas итп – включены). Сверловка под скрытую электрику, чаши, вертикальный транспорт итп: включено.
- Стропильная система сухая , мауэрлат 200х200.
- Металлочерепица (см примечание в нюансах) с утеплением 200мм (Paroc Extra Финляндия или аналог), снегозадержатели, водосточная система: включена.
- В стоимость не входят
- В стоимость не входят
- В стоимость не входят
- Фундамент: железобетонные забивные сваи 150х150 с оголовком по спец. заказу Рубкофф Ростверк 200х200 лиственница (антисептированный), геология и привязка: все включено.
- Стены: из клееного бруса 200х185 (экспортный клей, европейская сертификация). Лаги этажей, все необходимые материалы (включая узлы силы, rothoblaas итп – включены). Сверловка под скрытую электрику, чаши, вертикальный транспорт итп: включено.
- Стропильная система сухая , мауэрлат 200х200.
- Металлочерепица (см примечание в нюансах) с утеплением 200мм (Paroc Extra Финляндия или аналог), снегозадержатели, водосточная система: включена.
- В стоимость не входят
- В стоимость не входят
- В стоимость не входят
Что еще входит в стоимость:
Отправьте свои контакты и мы расчитаем вам смету
Скорее всего вам подойдут следующие проекты домов:
Дом подходит для:
Дом подходит для:
Проект одноэтажного дома Сканди 205
Семья с двумя детьми
Дом подходит для:
Дом подходит для:












