Проект одноэтажного дома Пегас-К24
Площадь
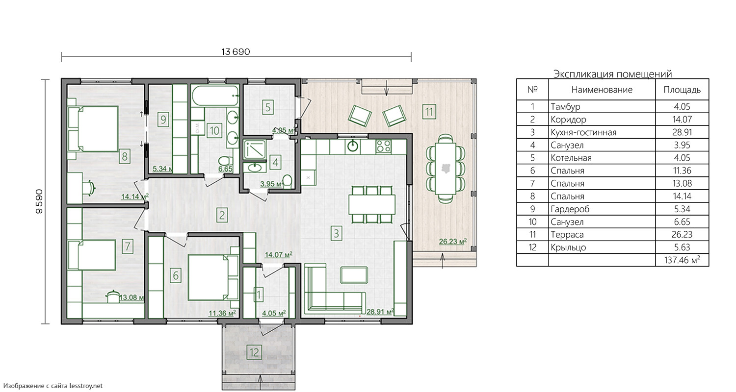
138 м 2
Размер дома:
Этажей:
1
Спален:
3
Санузел:
0
Гараж:
Нет
Баня:
Нет
Терраса:
Нет
Панорамные окна:
Нет
Мастер-спальня:
Нет
О проекте
Уютное гнёздышко для тех, кто ценит камерную атмосферу. 138 м² под одной крышей — всё необходимое здесь. Архитектура выполнена в стиле дома в классическом стиле. Количество спален — 3, делая планировку гибкой. Одноэтажная удобная планировка разграничивает спальные и дневные помещения.Характеристики
- Общая площадь: 138 м2
- Количество этажей: 1
- Стиль, разновидность: Дома в ином стиле
- Форма: Прямоугольные дома
- Тип кровли: Дома с односкатной крышей
- Отделка: Без отделки
Отправьте свои контакты и мы расчитаем вам смету
Скорее всего вам подойдут следующие проекты домов:
Дом подходит для:
Дом подходит для:
Дом подходит для:














