Проект двухэтажного дома Проект 1668 - дом из клееного бруса с большой гостиной и 4 спальнями
Площадь
274 м 2
Размер дома:
Этажей:
2
Спален:
4
Санузел:
0
Гараж:
Нет
Баня:
Нет
Терраса:
Нет
Панорамные окна:
Нет
Мастер-спальня:
Нет
О проекте
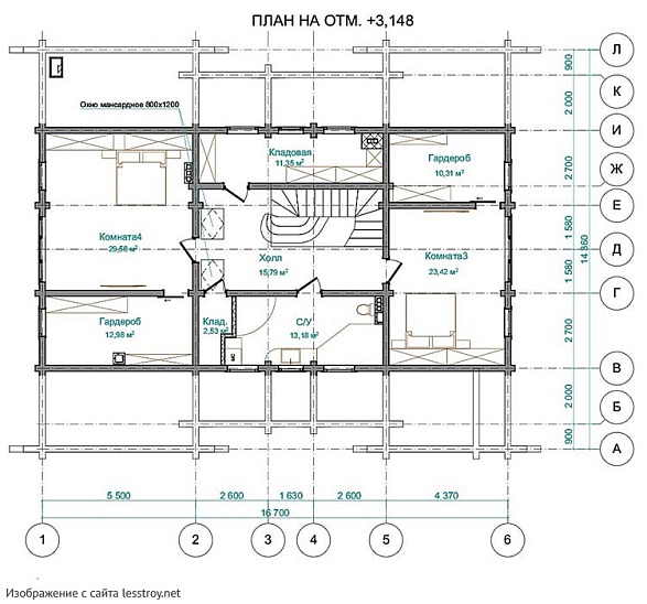
Представительный дом из клееного бруса площадью 274 м² для большой семьи. Два этажа с четырьмя спальнями включают просторную гостиную. Благородные материалы подчеркивают статус владельца. Роскошное жилье премиум-класса.Характеристики
- Общая площадь: 274 м2
- Количество этажей: 2
- Стиль, разновидность: Дома в ином стиле
- Форма: Прямоугольные дома
- Тип кровли: Дома с многощипцовой крышей
- Отделка: Без отделки
Отправьте свои контакты и мы расчитаем вам смету
Скорее всего вам подойдут следующие проекты домов:
Дом подходит для:
Дом подходит для:








