Проект двухэтажного дома Проект №4
Площадь
118 м 2
Размер дома:
10x11
Этажей:
2
Спален:
3
Санузел:
0
Гараж:
Нет
Баня:
Нет
Терраса:
Нет
Панорамные окна:
Нет
Мастер-спальня:
Нет
О проекте
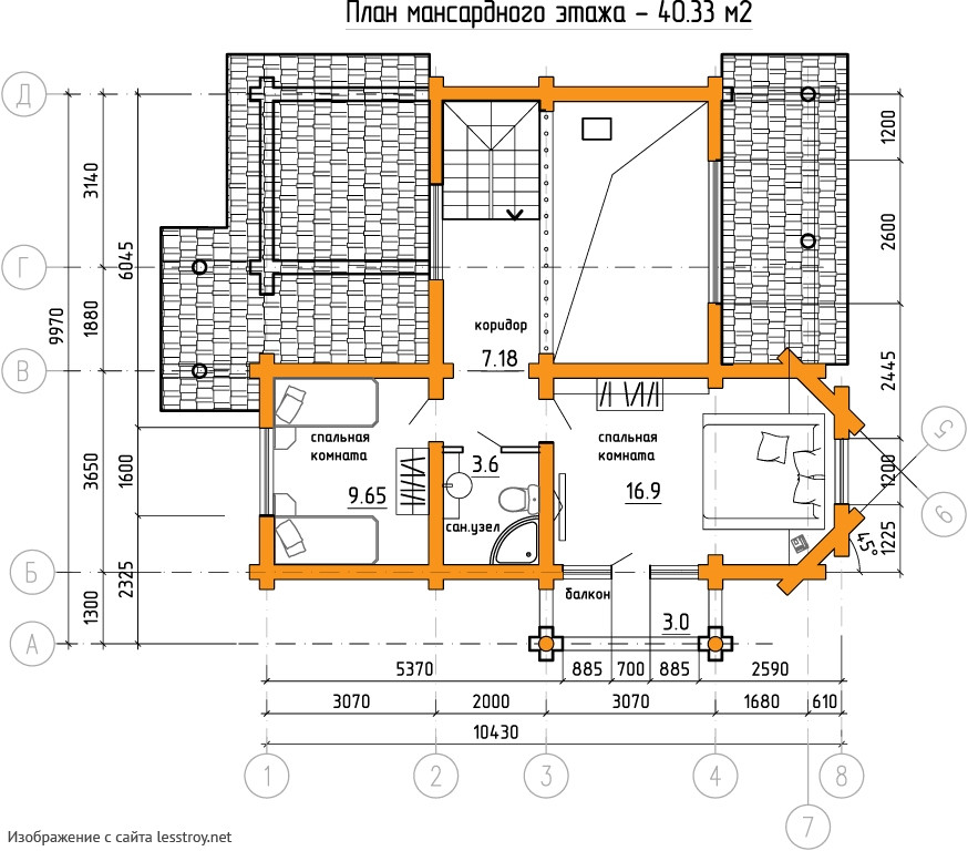
Бревенчатый дом площадью 118 кв.м. с тремя спальнями — это классика загородного жилья. Оцилиндрованное бревно создает неповторимую атмосферу. Проект в русском стиле подчеркивает связь с природой. Идеальный вариант для тех, кто ценит аутентичность. Уютное пространство для жизни.Характеристики
- Общая площадь: 118 м2
- Количество этажей: 2
- Стиль, разновидность: Дома в стиле Русский
- Форма: Прямоугольные дома
- Тип кровли: Дома с двускатной крышей
- Отделка: Без отделки
- Размер: 10x11
Отправьте свои контакты и мы расчитаем вам смету
Скорее всего вам подойдут следующие проекты домов:
Дом подходит для:
Дом подходит для:
Проект двухэтажного дома Дом из оцилиндрованного бревна Меркурий
Семья с двумя детьми
Дом подходит для:
Дом подходит для:














