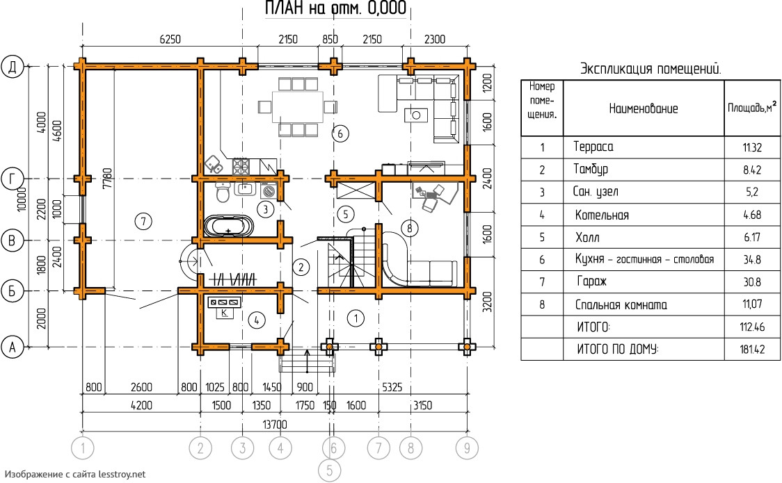
Проект двухэтажного дома Проект №8
Площадь
152 м 2
Размер дома:
10x14
Этажей:
2
Спален:
4
Санузел:
0
Гараж:
Нет
Баня:
Нет
Терраса:
Нет
Панорамные окна:
Нет
Мастер-спальня:
Нет
О проекте
В этом пространстве бетонные стены становятся фоном для семейных портретов.175 м² позволяют создать как уединённые, так и общие зоны. Двухэтажная эргономичная планировка создаёт идеальные условия для жизни всей семьи. Стены из бруса хорошо держат тепло и защищают от шума. Проект включает 3 спальни — удобно для семьи.Характеристики
- Общая площадь: 152 м2
- Количество этажей: 2
- Стиль, разновидность: Дома в стиле Русский
- Форма: Прямоугольные дома
- Тип кровли: Дома с двускатной крышей
- Отделка: Без отделки
- Размер: 10x14
Отправьте свои контакты и мы расчитаем вам смету
Скорее всего вам подойдут следующие проекты домов:
Дом подходит для:
Дом подходит для:
Дом подходит для:












