Проект двухэтажного дома Проект 95
Площадь
302 м 2
Размер дома:
Этажей:
2
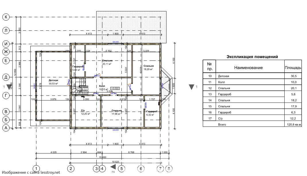
Спален:
4
Санузел:
0
Гараж:
Нет
Баня:
Нет
Терраса:
Нет
Панорамные окна:
Нет
Мастер-спальня:
Нет
О проекте
Двухэтажный дом из SIP-панелей площадью 302 м² с четырьмя спальнями и мансардной крышей. Металлочерепица и современный стиль делают его идеальным для большой семьи. Простор и инновации в одном проекте.Характеристики
- Общая площадь: 302 м2
- Количество этажей: 2
- Стиль, разновидность: Дома в ином стиле
- Форма: Прямоугольные дома
- Тип кровли: Дома с мансардной крышей
- Отделка: Без отделки
Отправьте свои контакты и мы расчитаем вам смету
Скорее всего вам подойдут следующие проекты домов:
Дом подходит для:
Дом подходит для:
Дом подходит для:








