Проект двухэтажного дома Проект ДБ-9
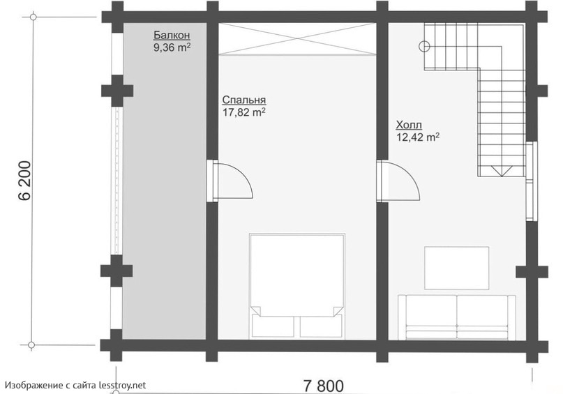
Площадь
81 м 2
Размер дома:
Этажей:
2
Спален:
2
Санузел:
0
Гараж:
Нет
Баня:
Нет
Терраса:
Нет
Панорамные окна:
Нет
Мастер-спальня:
Нет
О проекте
В этом пространстве приятно находиться — здесь все сделано с заботой. 70 м² позволяют создать как уединённые, так и общие зоны. Количество спален — 3, делая планировку гибкой. Конструкция из каркаса обеспечивает прочность и долговечность. Двухэтажная уютная планировка делает зонирование более логичным.Характеристики
- Общая площадь: 81 м2
- Количество этажей: 2
- Стиль, разновидность: Дома в стиле Русский
- Форма: Прямоугольные дома
- Тип кровли: Дома с двускатной крышей
- Отделка: Без отделки
Отправьте свои контакты и мы расчитаем вам смету
Скорее всего вам подойдут следующие проекты домов:
Дом подходит для:
Дом подходит для:
Дом подходит для:












