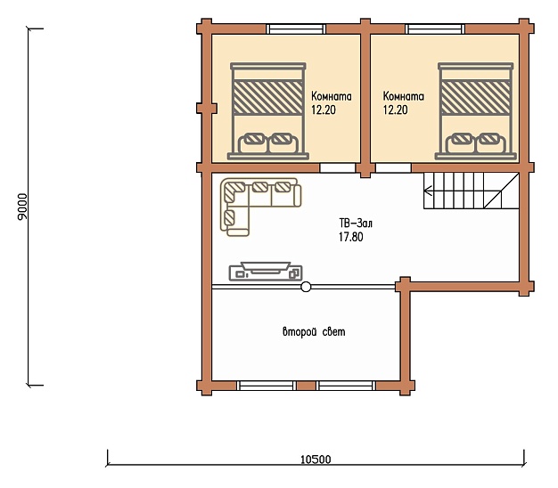
Проект двухэтажного дома Проект дома 7.0х9.0 м «Мосальск»
Площадь
105 м 2
Размер дома:
7x9
Этажей:
2
Спален:
2
Санузел:
0
Гараж:
Нет
Баня:
Нет
Терраса:
Нет
Панорамные окна:
Нет
Мастер-спальня:
Нет
О проекте
Пространство, в котором вы сразу почувствуете себя как дома.Жилая площадь составляет 9 м² — идеально для комфортной жизни. Одноэтажная современная планировка разделяет приватные и общественные зоны. Наличие 1 спальня удовлетворит запросы семьи с детьми. Дом спроектирован в духе дома в стиле минимализм.Характеристики
- Общая площадь: 105 м2
- Количество этажей: 2
- Стиль, разновидность: Дома в стиле Модерн
- Форма: Прямоугольные дома
- Тип кровли: Дома с двускатной крышей
- Отделка: Без отделки
- Размер: 7x9
Отправьте свои контакты и мы расчитаем вам смету
Скорее всего вам подойдут следующие проекты домов:
Дом подходит для:
Дом подходит для:
Дом подходит для:












