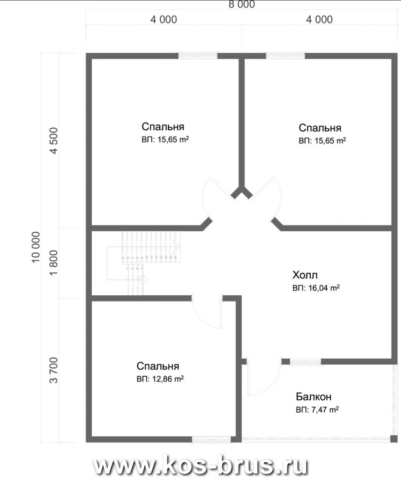
Проект двухэтажного дома Проект дома из бруса 8.0х10.0 м «Углич»
Площадь
134 м 2
Размер дома:
8x10
Этажей:
2
Спален:
3
Санузел:
0
Гараж:
Нет
Баня:
Нет
Терраса:
Нет
Панорамные окна:
Нет
Мастер-спальня:
Нет
О проекте
Дом выглядит гармонично благодаря продуманному дизайну.Тёплый и уютный объём — 127 м². Стены из бруса хорошо держат тепло и защищают от шума. Дом спроектирован в духе финские дома. Материал кровли — рубероид, что добавляет зданию индивидуальность.Характеристики
- Общая площадь: 134 м2
- Количество этажей: 2
- Стиль, разновидность: Дома в стиле Русский
- Форма: Прямоугольные дома
- Тип кровли: Дома с двускатной крышей
- Отделка: Без отделки
- Размер: 8x10










