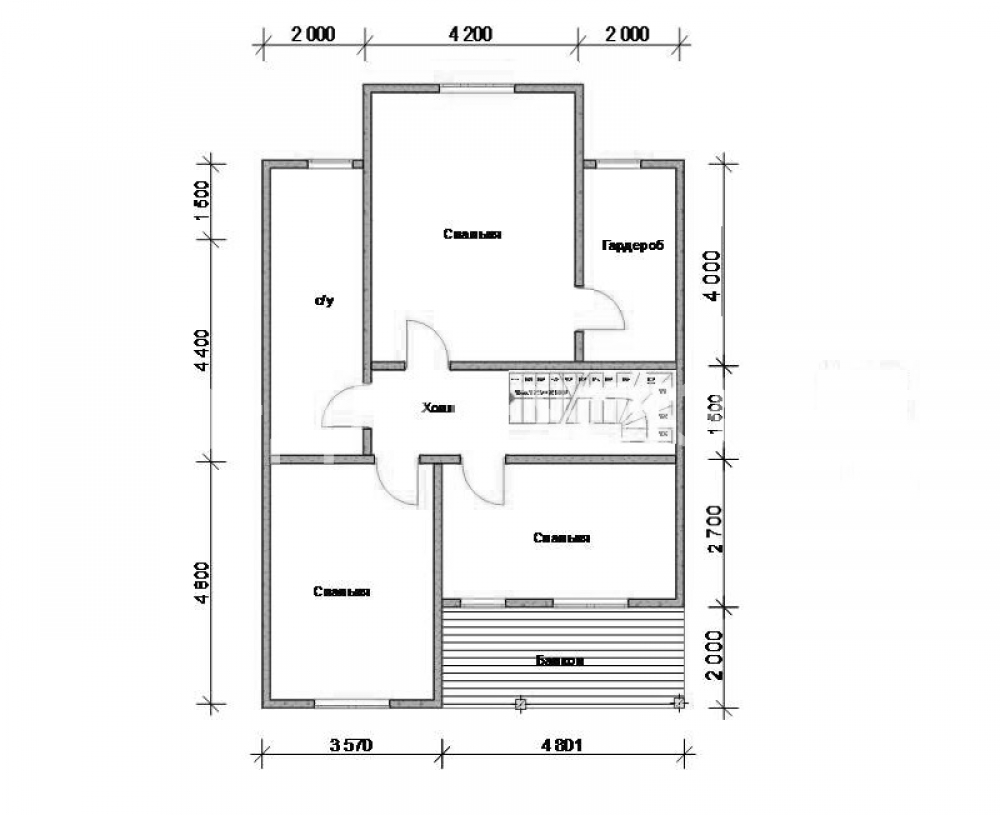
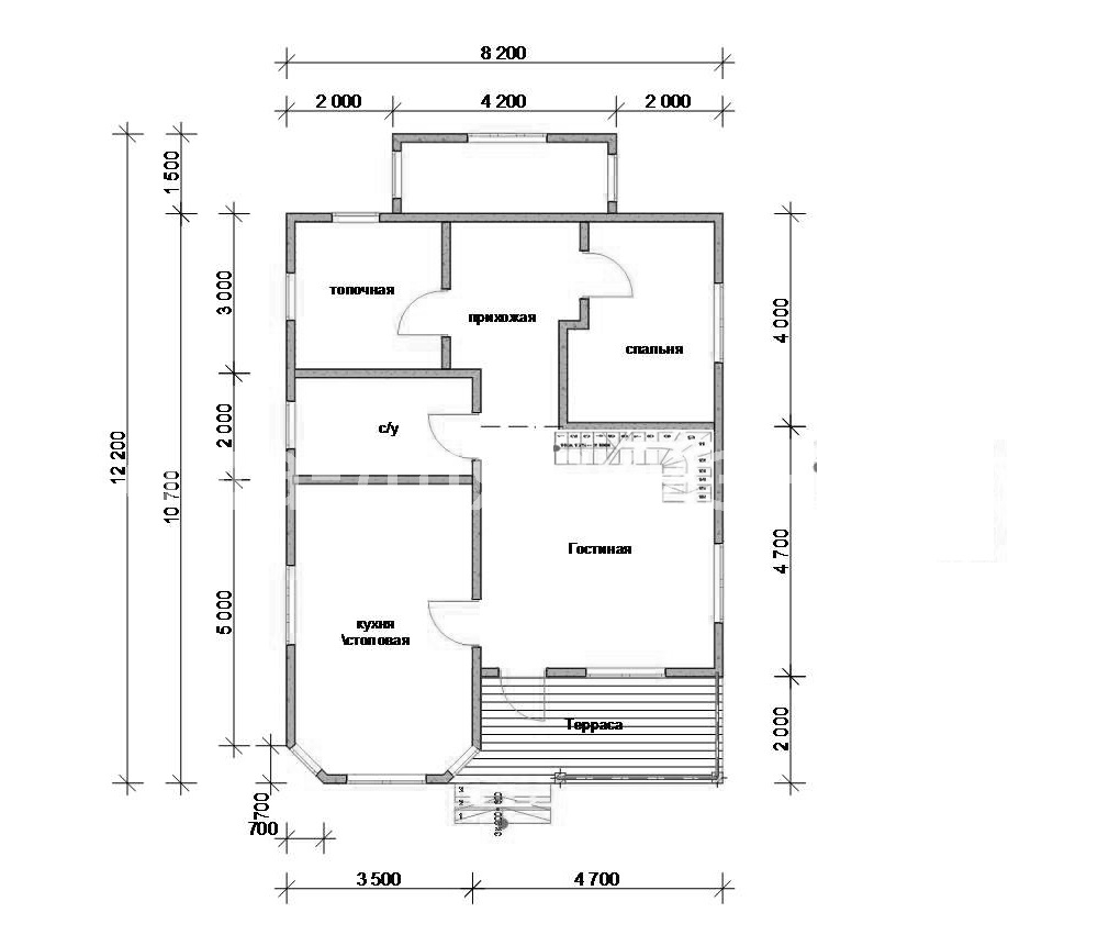
Проект двухэтажного дома Проект дома из бруса 8*12
Площадь
114 м 2
Размер дома:
8x12
Этажей:
2
Спален:
4
Санузел:
0
Гараж:
Нет
Баня:
Нет
Терраса:
Нет
Панорамные окна:
Нет
Мастер-спальня:
Нет
О проекте
В этом пространстве линии идеальны, а эмоции - подлинны.Дом даёт 157 м² для отдыха, творчества и общения. металлочерепица придаёт дому выразительность и надёжность. Дом спроектирован в духе дома в стиле шале. Конструкция из бревна обеспечивает прочность и долговечность.Характеристики
- Общая площадь: 114 м2
- Количество этажей: 2
- Стиль, разновидность: Дома в ином стиле
- Форма: Прямоугольные дома
- Тип кровли: Дома с шатровой крышей
- Отделка: Без отделки
- Размер: 8x12











