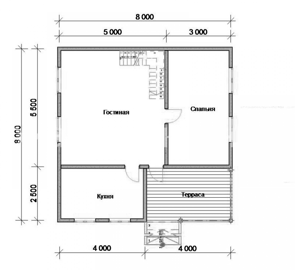
Проект двухэтажного дома Проект дома из бруса 8*8
Площадь
98 м 2
Размер дома:
8x8
Этажей:
2
Спален:
3
Санузел:
0
Гараж:
Нет
Баня:
Нет
Терраса:
Нет
Панорамные окна:
Нет
Мастер-спальня:
Нет
О проекте
Пространство, где новаторские решения создали идеальные условия для семейных ритуалов. Больше, чем просто метры: 150 м² — это дом. Это двухэтажная структура, которая разграничивает спальные и дневные помещения. Бруса делает дом надёжным при любой погоде. В доме предусмотрено 3 спальни, что важно для комфорта.Характеристики
- Общая площадь: 98 м2
- Количество этажей: 2
- Стиль, разновидность: Дома в ином стиле
- Форма: Квадратные дома
- Тип кровли: Дома с шатровой крышей
- Отделка: Без отделки
- Размер: 8x8













