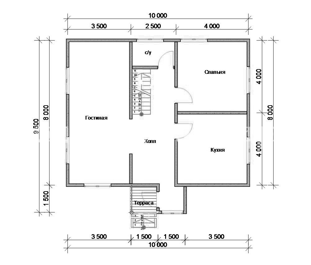
Проект двухэтажного дома Проект дома из бруса 9*10
Площадь
131 м 2
Размер дома:
9x10
Этажей:
2
Спален:
3
Санузел:
0
Гараж:
Нет
Баня:
Нет
Терраса:
Нет
Панорамные окна:
Нет
Мастер-спальня:
Нет
О проекте
Проект построил дом из металла и стекла, но наполнил его деревом и любовью.Уют и простота воплощаются в 93 м² комфортного пространства. Двухэтажная удобная планировка создаёт идеальные условия для жизни всей семьи. Бруса делает дом надёжным при любой погоде. Дом спроектирован в духе дома в стиле русский.Характеристики
- Общая площадь: 131 м2
- Количество этажей: 2
- Стиль, разновидность: Дома в ином стиле
- Форма: Прямоугольные дома
- Тип кровли: Дома со сводчатой крышей
- Отделка: Без отделки
- Размер: 9x10








