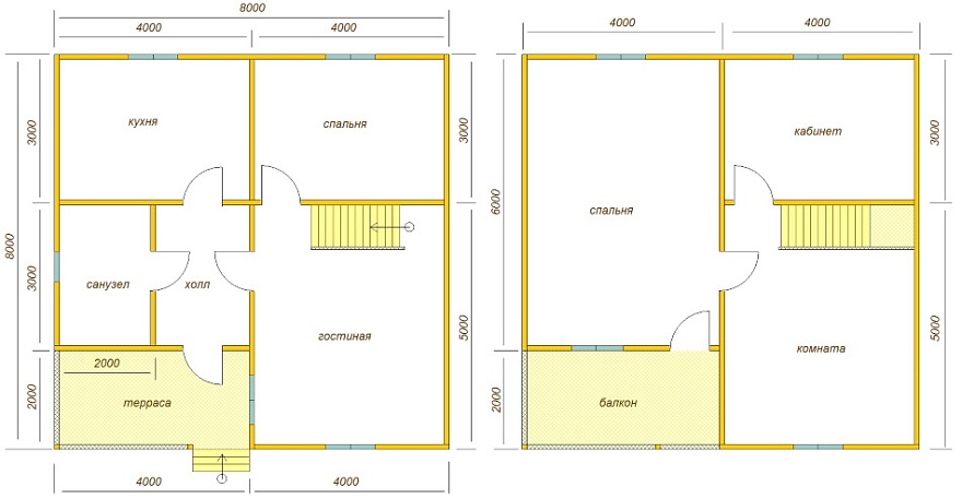
Проект двухэтажного дома Проект дома из бруса 9х14 2 этажа
Площадь
148 м 2
Размер дома:
9x14
Этажей:
2
Спален:
4
Санузел:
0
Гараж:
Нет
Баня:
Нет
Терраса:
Нет
Панорамные окна:
Нет
Мастер-спальня:
Нет
О проекте
Дом, в котором шкафы-купе не съедают пространство. С площадью 148 м² легко реализовать уникальный интерьер. Архитектура выполнена в стиле дома в классическом стиле. Крыша из рубероид подчёркивает современный облик дома. Конструкция из Брус обеспечивает прочность и долговечность.Характеристики
- Общая площадь: 148 м2
- Количество этажей: 2
- Стиль, разновидность: Дома в ином стиле
- Тип кровли: Дома с иной крышей
- Отделка: Без отделки
- Размер: 9x14
Отправьте свои контакты и мы расчитаем вам смету
Скорее всего вам подойдут следующие проекты домов:
Дом подходит для:
Дом подходит для:
Дом подходит для:











