Проект одноэтажного дома Проект дома К-83
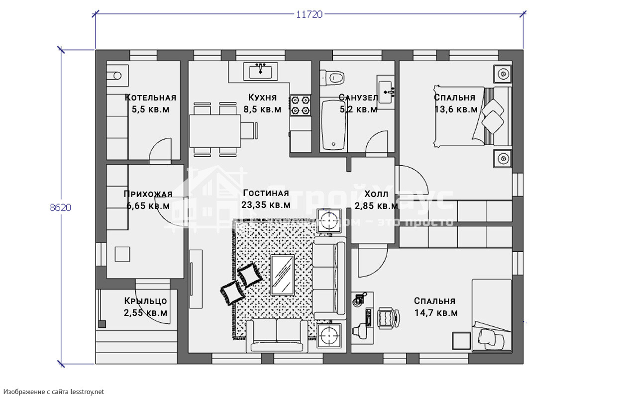
Площадь
83 м 2
Размер дома:
Этажей:
1
Спален:
2
Санузел:
0
Гараж:
Нет
Баня:
Нет
Терраса:
Нет
Панорамные окна:
Нет
Мастер-спальня:
Нет
О проекте
Дом, где балкон или терраса становятся любимым местом отдыха. В этих 83 м² легко организовать рабочую и зону отдыха. Проект включает 2 спальни — удобно для семьи. Дом спроектирован в духе финские дома. Это одноэтажная структура, которая делает зонирование более логичным.Характеристики
- Общая площадь: 83 м2
- Количество этажей: 1
- Стиль, разновидность: Финские дома
- Форма: Прямоугольные дома
- Тип кровли: Дома с двускатной крышей
- Отделка: Без отделки
Отправьте свои контакты и мы расчитаем вам смету
Скорее всего вам подойдут следующие проекты домов:
Проект одноэтажного дома Дом из бруса 9 x 12 м | проект Д-35
Семья с одним ребенком
Дом подходит для:
Дом подходит для:
Дом подходит для:
Дом подходит для:










