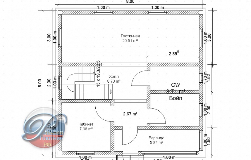
Проект двухэтажного дома Проект Дома Кёльн
Площадь
138 м 2
Размер дома:
Этажей:
2
Спален:
4
Санузел:
0
Гараж:
Нет
Баня:
Нет
Терраса:
Нет
Панорамные окна:
Нет
Мастер-спальня:
Нет
О проекте
Дом, который вдохновляет на новые свершения. Планировка построена вокруг 112 м² простора и логики. Дом спроектирован в духе дома в стиле русский. Двухэтажная грамотная планировка обеспечивает практичное распределение комнат. Крыша из металлочерепица подчёркивает современный облик дома.Характеристики
- Общая площадь: 138 м2
- Количество этажей: 2
- Стиль, разновидность: Дома в стиле Фахверк
- Форма: Квадратные дома
- Тип кровли: Дома с двускатной крышей
- Отделка: Без отделки
Отправьте свои контакты и мы расчитаем вам смету
Скорее всего вам подойдут следующие проекты домов:
Проект двухэтажного дома Каркасный дом 8х8 (8 на 8), проект двух этажного дома
Семья с одним ребенком
Дом подходит для:
Дом подходит для:
Дом подходит для:
Дом подходит для:








