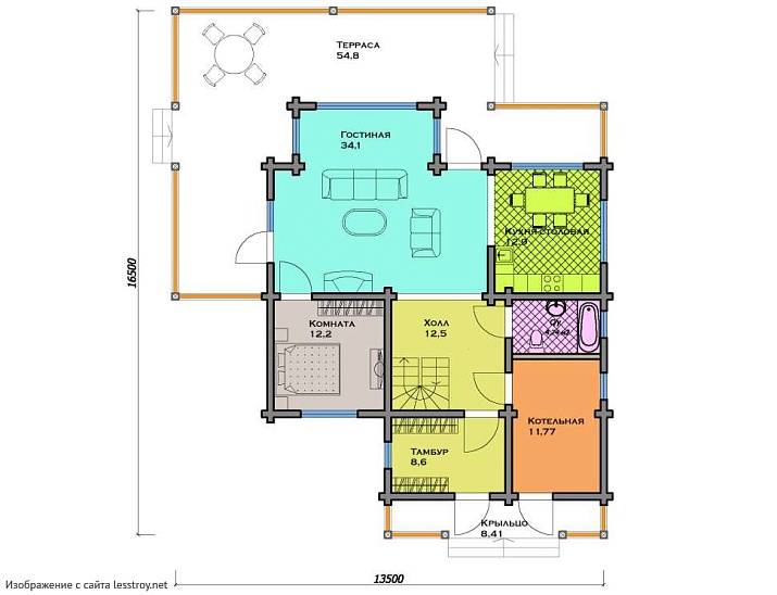
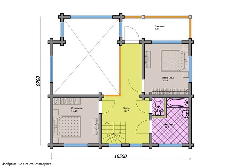
Проект двухэтажного дома Проект ДПБ-50
Площадь
206 м 2
Размер дома:
Этажей:
2
Спален:
4
Санузел:
0
Гараж:
Нет
Баня:
Нет
Терраса:
Нет
Панорамные окна:
Нет
Мастер-спальня:
Нет
О проекте
Архитектура здания создает ощущение стабильности и уюта. Баланс функциональности и уюта в 167 м². Дом спроектирован в духе дома в стиле модерн. Крыша из битумная черепица подчёркивает современный облик дома. Двухэтажная удобная планировка создаёт идеальные условия для жизни всей семьи.Характеристики
- Общая площадь: 206 м2
- Количество этажей: 2
- Стиль, разновидность: Дома в стиле Русский
- Форма: Прямоугольные дома
- Тип кровли: Дома с многощипцовой крышей
- Отделка: Без отделки
Отправьте свои контакты и мы расчитаем вам смету
Скорее всего вам подойдут следующие проекты домов:
Дом подходит для:
Дом подходит для:
Дом подходит для:









