Проект двухэтажного дома Проект Монаково 200
Площадь
200 м 2
Размер дома:
10x10
Этажей:
2
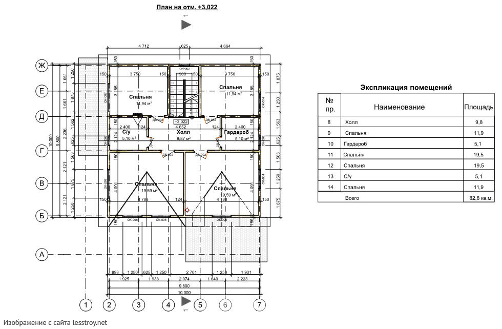
Спален:
4
Санузел:
0
Гараж:
Нет
Баня:
Нет
Терраса:
Нет
Панорамные окна:
Нет
Мастер-спальня:
Нет
О проекте
Просторный двухэтажный 200-метровый дом из SIP-панелей. Четыре стильные спальни под мансардной крышей создают образ современного загородного особняка.Характеристики
- Общая площадь: 200 м2
- Количество этажей: 2
- Стиль, разновидность: Дома в ином стиле
- Форма: Прямоугольные дома
- Тип кровли: Дома с мансардной крышей
- Отделка: Без отделки
- Размер: 10x10
Отправьте свои контакты и мы расчитаем вам смету
Скорее всего вам подойдут следующие проекты домов:
Дом подходит для:
Дом подходит для:
Дом подходит для:













