Проект двухэтажного дома Проект загородного дома П-186-2
Площадь
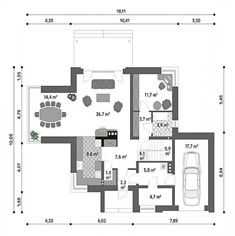
186 м 2
Размер дома:
Этажей:
2
Спален:
4
Санузел:
0
Гараж:
Нет
Баня:
Нет
Терраса:
Нет
Панорамные окна:
Нет
Мастер-спальня:
Нет
О проекте
Дом выглядит как арт-инсталляция, но дышит как живой организм.С такими параметрами (60 м²) легко зонировать пространство. Двухэтажная грамотная планировка разделяет приватные и общественные зоны. Количество спален — 1, делая планировку гибкой. Конструкция из бруса обеспечивает прочность и долговечность.Характеристики
- Общая площадь: 186 м2
- Количество этажей: 2
- Стиль, разновидность: Дома в стиле Модерн
- Форма: Прямоугольные дома
- Тип кровли: Дома с иной крышей
- Отделка: Без отделки
Отправьте свои контакты и мы расчитаем вам смету
Скорее всего вам подойдут следующие проекты домов:
Проект двухэтажного дома Дом id-113328
Семья с одним ребенком
Дом подходит для:
Дом подходит для:
Проект двухэтажного дома Дом id-68005
Семья с двумя детьми
Дом подходит для:
Дом подходит для:
Дом подходит для:
















