Проект одноэтажного дома Проект загородного дома П-88-1
Площадь
88 м 2
Размер дома:
Этажей:
1
Спален:
1
Санузел:
0
Гараж:
Нет
Баня:
Нет
Терраса:
Нет
Панорамные окна:
Нет
Мастер-спальня:
Нет
О проекте
В стеклянных поверхностях отражается не только свет, но и тепло домашнего очага. 98 м² позволяют создать как уединённые, так и общие зоны. Архитектура выполнена в стиле дома в классическом стиле. В доме предусмотрено 3 спальни, что важно для комфорта. Двухэтажная современная планировка организует пространство максимально эффективно.Характеристики
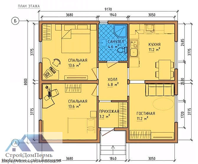
- Общая площадь: 88 м2
- Количество этажей: 1
- Стиль, разновидность: Дома в стиле Модерн
- Форма: Прямоугольные дома
- Тип кровли: Дома с четырехскатной крышей (вальмовой)
- Отделка: Без отделки
Отправьте свои контакты и мы расчитаем вам смету
Скорее всего вам подойдут следующие проекты домов:
Дом подходит для:
Дом подходит для:




