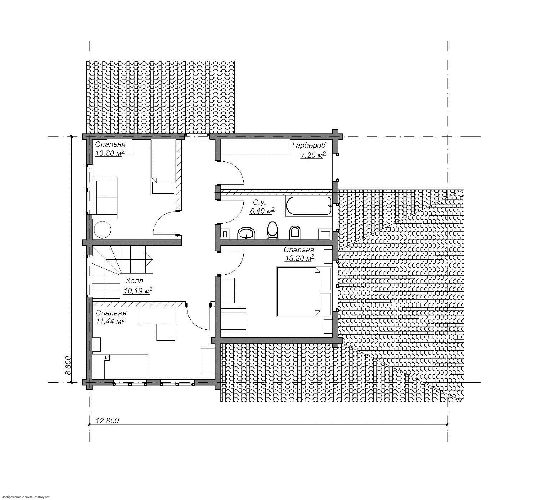
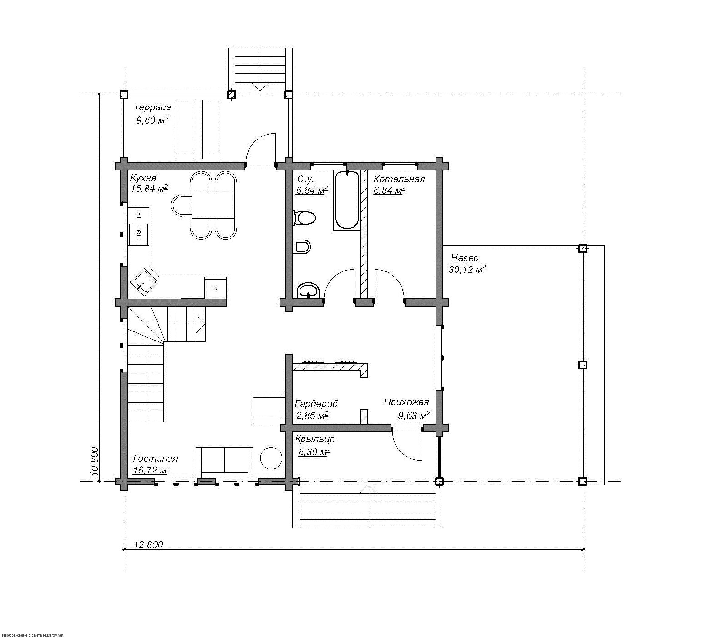
Проект двухэтажного дома Проект загородного коттеджа Пушкино-164
Площадь
164 м 2
Размер дома:
Этажей:
2
Спален:
3
Санузел:
0
Гараж:
Нет
Баня:
Нет
Терраса:
Нет
Панорамные окна:
Нет
Мастер-спальня:
Нет
О проекте
В этом здании красота и функциональность дополняют друг друга.Дом из бруса площадью 164 м² сочетает в себе экологичность и комфорт. Теплые деревянные стены создают уютную атмосферу. Просторные спальни и гостиная подходят для семьи. Участок позволяет разбить цветник или поставить беседку.Характеристики
- Общая площадь: 164 м2
- Количество этажей: 2
- Стиль, разновидность: Дома в стиле Модерн
- Форма: Квадратные дома
- Тип кровли: Дома с многощипцовой крышей
- Отделка: Без отделки
Отправьте свои контакты и мы расчитаем вам смету
Скорее всего вам подойдут следующие проекты домов:
Дом подходит для:
Дом подходит для:
Дом подходит для:











