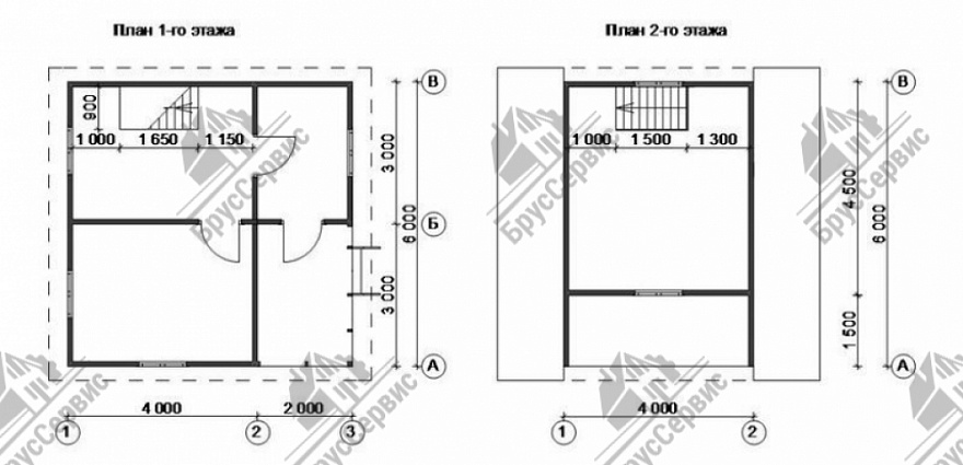
Проект двухэтажного дома Проет Д-40
Площадь
60 м 2
Размер дома:
6x6
Этажей:
2
Спален:
2
Санузел:
0
Гараж:
Нет
Баня:
Нет
Терраса:
Нет
Панорамные окна:
Нет
Мастер-спальня:
Нет
О проекте
Дом, где утро начинается приятно. 60 м² под одной крышей — всё необходимое здесь. Материал кровли — ондулин, что добавляет зданию индивидуальность. Двухэтажная современная планировка разграничивает спальные и дневные помещения. Брус делает дом надёжным при любой погоде.Характеристики
- Общая площадь: 60 м2
- Количество этажей: 2
- Стиль, разновидность: Дома в ином стиле
- Форма: Квадратные дома
- Тип кровли: Дома с шатровой крышей
- Отделка: Без отделки
- Размер: 6x6





