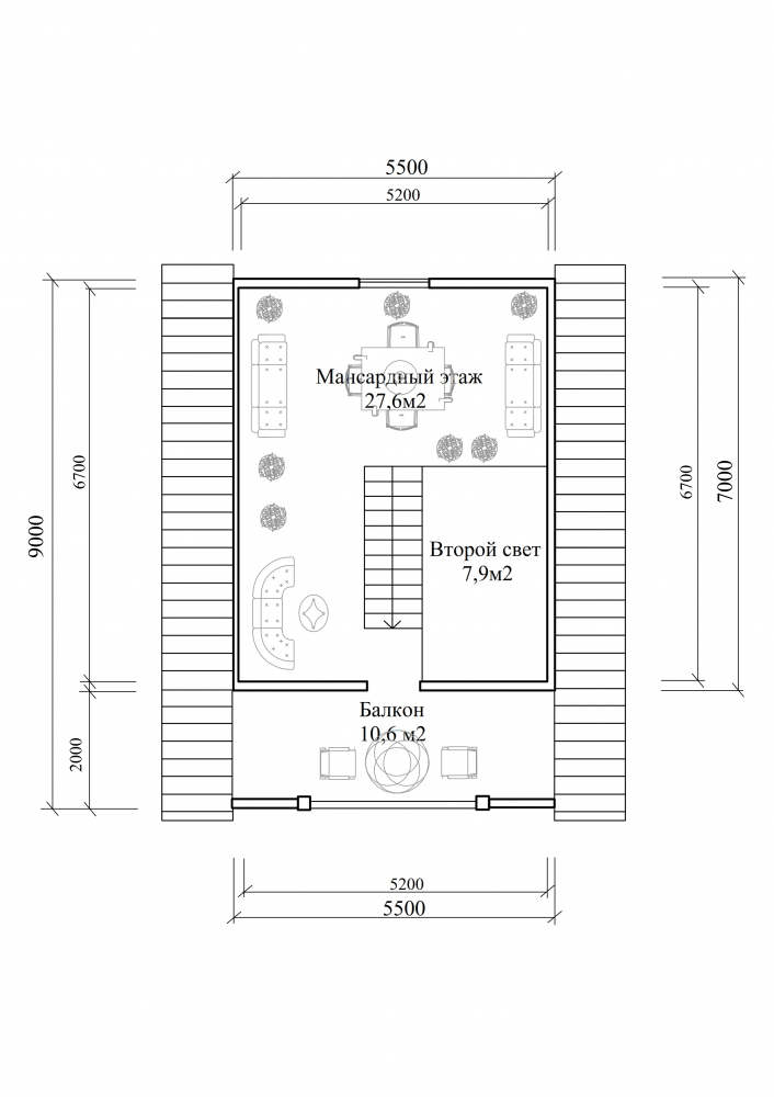
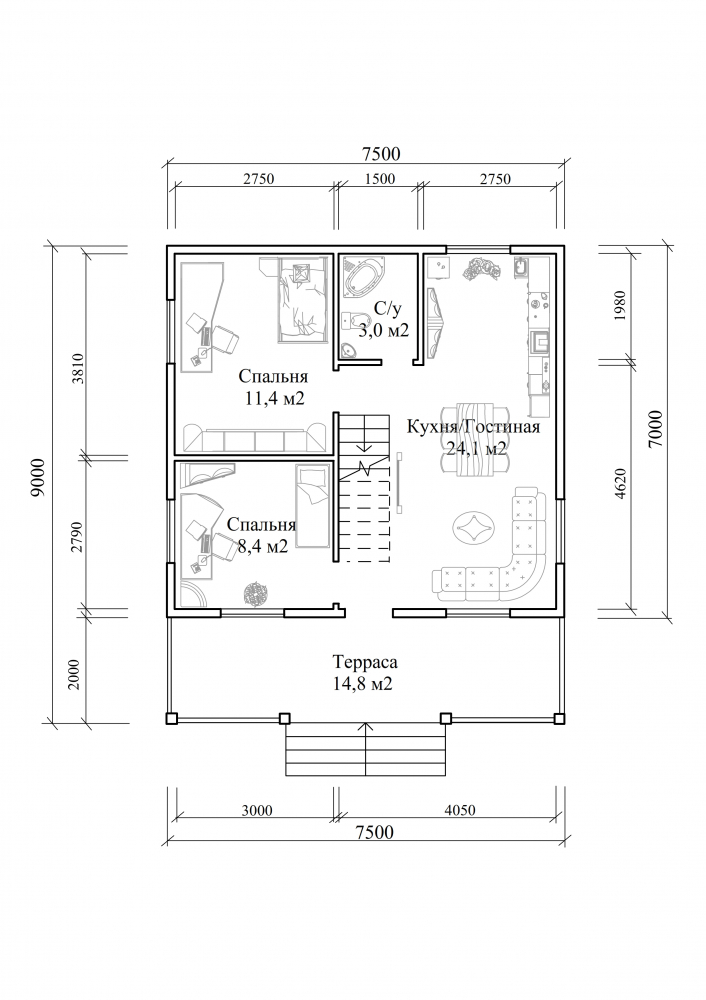
Проект двухэтажного дома Просвет
Площадь
117 м 2
Размер дома:
8x9
Этажей:
2
Спален:
2
Санузел:
0
Гараж:
Нет
Баня:
Нет
Терраса:
Нет
Панорамные окна:
Нет
Мастер-спальня:
Нет
О проекте
Лаконичность, подчеркивающая стиль.126 м² — оптимальный метраж для комфорта и уединения. Двухэтажная просторная планировка делает зонирование более логичным. Архитектура выполнена в стиле дома в классическом стиле. Количество спален — 3, делая планировку гибкой.Характеристики
- Общая площадь: 117 м2
- Количество этажей: 2
- Стиль, разновидность: Дома в ином стиле
- Тип кровли: Дома с двускатной крышей
- Отделка: Без отделки
- Размер: 8x9
Отправьте свои контакты и мы расчитаем вам смету
Скорее всего вам подойдут следующие проекты домов:
Дом подходит для:
Дом подходит для:
Дом подходит для:








