Проект двухэтажного дома Рига
Дом подходит для:
Площадь
153 м 2
Размер дома:
12x12
Этажей:
2
Спален:
2
Санузел:
1
Гараж:
Нет
Баня:
Нет
Терраса:
Да
Панорамные окна:
Нет
Мастер-спальня:
Нет
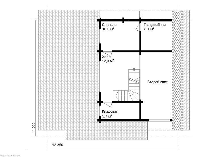
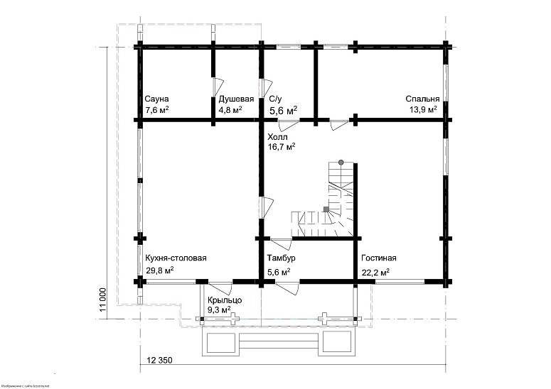
Планировка
Характеристики
- Общая площадь: 153 м2
- Жилая площадь: 104 м2
- Количество этажей: 2
- Гараж: нет
- Площадь кровли: 161 м2
- Форма: Квадратные дома
- Тип кровли: Дома с двускатной крышей
- Пристрой: Дома с террасой
- Отделка: С черновой отделкой
- Размер: 12x12
- Фундамент: Дома со свайным фундаментом
Материалы и перечень работ
- Железобетонные забивные сваи сечением 20x20 см длиной 3 метра из бетона высшего качества
- Устройство обвязочного бруса или подкладной доски на фундамент
- Гидроизоляция фундамента
- Привязка и разметка фундамента на участке
- Изготовление домокомплекта из оцилиндрованного бревна диаметром 22 см
- Врезка балок пола 1 этажа
- Все расходные материалы для сборки
- Устройство межэтажных балок (из бревна)
- Капитальная кровля (утепление 20 см, пароизоляция, гидроизоляция, обрешетка и контробрешетка) с покрытием натуральной черепицей BRAAS
- Устройство стропильной системы
- Покрытие кровли гидроизоляционным материалом
- В стоимость не входит
- В стоимость не входит
- В стоимость не входит
- Железобетонные забивные сваи сечением 20x20 см длиной 3 метра из бетона высшего качества
- Устройство обвязочного бруса или подкладной доски на фундамент
- Гидроизоляция фундамента
- Привязка и разметка фундамента на участке
- Изготовление домокомплекта из оцилиндрованного бревна диаметром 22 см
- Врезка балок пола 1 этажа
- Все расходные материалы для сборки
- Устройство межэтажных балок (из бревна)
- Капитальная кровля (утепление 20 см, пароизоляция, гидроизоляция, обрешетка и контробрешетка) с покрытием натуральной черепицей BRAAS
- Устройство стропильной системы
- Покрытие кровли гидроизоляционным материалом
- В стоимость не входит
- В стоимость не входит
- В стоимость не входит
Что еще входит в стоимость:
Отправьте свои контакты и мы расчитаем вам смету
Скорее всего вам подойдут следующие проекты домов:
Дом подходит для:
Проект двухэтажного дома Проект гостевого дома с баней Современный-151
Семья с одним ребенком
Дом подходит для:
Дом подходит для:
Дом подходит для:













