Проект двухэтажного дома S-1
Дом подходит для:
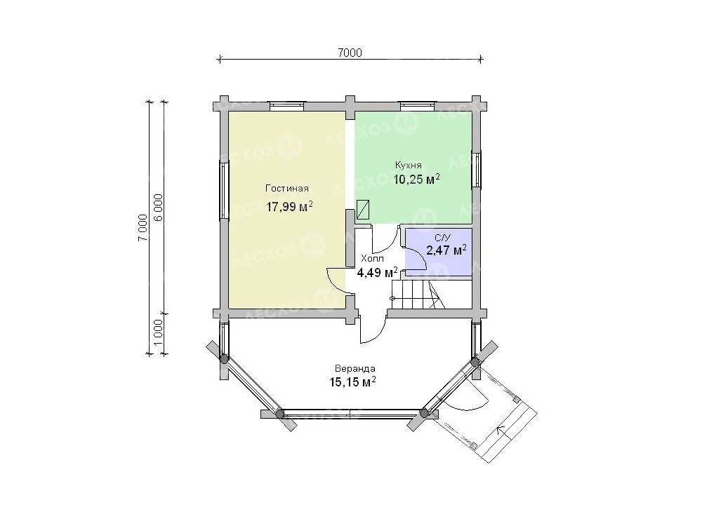
Площадь
82 м 2
Размер дома:
7x7
Этажей:
2
Спален:
2
Санузел:
1
Гараж:
Нет
Баня:
Нет
Терраса:
Да
Панорамные окна:
Нет
Мастер-спальня:
Нет
Планировка
Характеристики
- Общая площадь: 82 м2
- Жилая площадь: 61 м2
- Количество этажей: 2
- Гараж: нет
- Площадь кровли: 89 м2
- Форма: Квадратные дома
- Тип кровли: Дома с многощипцовой крышей
- Пристрой: Дома с верандой
- Отделка: Без отделки
- Размер: 7x7
Материалы и перечень работ
- В стоимость не входит
- Сруб из бревна диаметром 22-26 см, рубка в чашу.
- Высота вырубки – 4,5 м.
- Половые и потолочные балки – лафет.
- Расходные материалы.
- Стропильная система крыши – доска 150х50 мм.
- Обрешетка крыши – обрезная доска 25х150 мм.
- Покрытие крыши рубероидом, приклад на крышу.
- Мох строительный.
- В стоимость не входит
- В стоимость не входит
- В стоимость не входит
- В стоимость не входит
- Сруб из бревна диаметром 22-26 см, рубка в чашу.
- Высота вырубки – 4,5 м.
- Половые и потолочные балки – лафет.
- Расходные материалы.
- Стропильная система крыши – доска 150х50 мм.
- Обрешетка крыши – обрезная доска 25х150 мм.
- Покрытие крыши рубероидом, приклад на крышу.
- Мох строительный.
- В стоимость не входит
- В стоимость не входит
- В стоимость не входит
Что еще входит в стоимость:
Отправьте свои контакты и мы расчитаем вам смету
Скорее всего вам подойдут следующие проекты домов:
Дом подходит для:
Дом подходит для:














