Проект двухэтажного дома С-143 КР Клевер
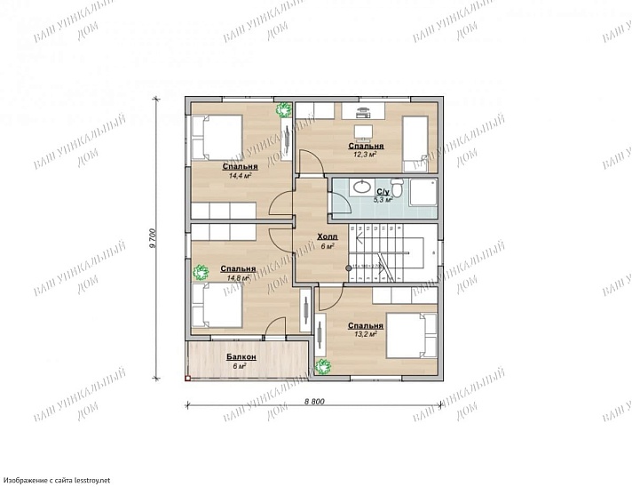
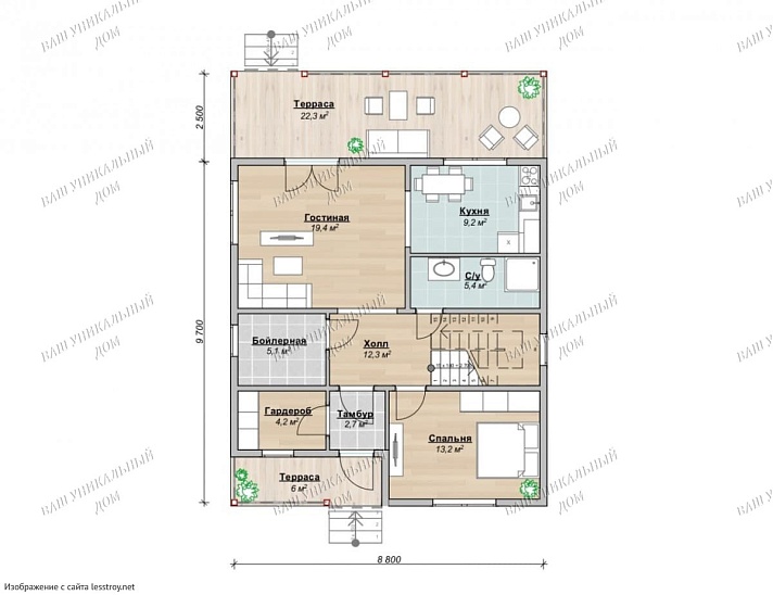
Площадь
206 м 2
Размер дома:
Этажей:
2
Спален:
3
Санузел:
0
Гараж:
Нет
Баня:
Нет
Терраса:
Нет
Панорамные окна:
Нет
Мастер-спальня:
Нет
О проекте
Дом как современная крепость, охраняющая тепло домашнего очагаВ этих 70 м² легко организовать рабочую и зону отдыха. В качестве кровли использована металлочерепица — материал, проверенный временем. Одноэтажная удобная планировка обеспечивает практичное распределение комнат. Дом спроектирован в духе дома в стиле модерн.Характеристики
- Общая площадь: 206 м2
- Количество этажей: 2
- Стиль, разновидность: Дома в стиле Модерн
- Форма: Прямоугольные дома
- Тип кровли: Дома с четырехскатной крышей (вальмовой)
- Отделка: Без отделки
Отправьте свои контакты и мы расчитаем вам смету
Скорее всего вам подойдут следующие проекты домов:
Дом подходит для:
Дом подходит для:
Дом подходит для:










