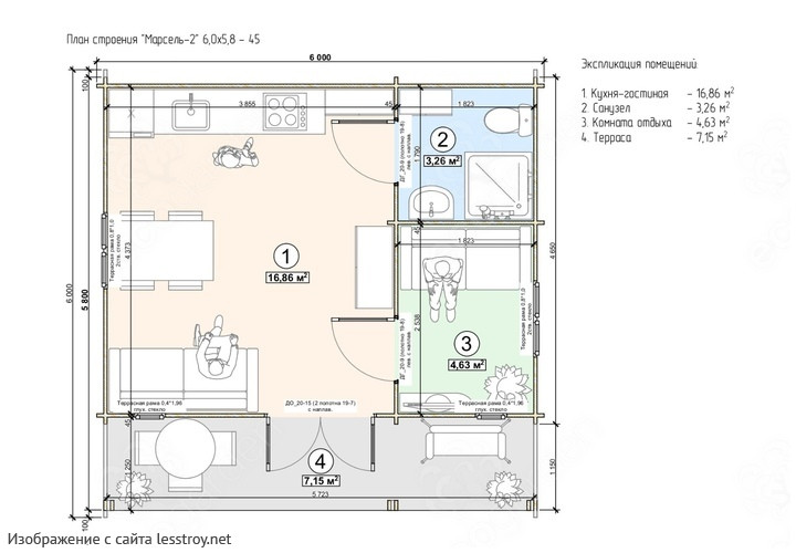
Проект одноэтажного дома Садовый домик Марсель-2 (6.0х5.8м). Брус камерной сушки 135х45/60/90мм
Площадь
31 м 2
Размер дома:
Этажей:
1
Спален:
1
Санузел:
0
Гараж:
Нет
Баня:
Нет
Терраса:
Нет
Панорамные окна:
Нет
Мастер-спальня:
Нет
О проекте
Качество, ощутимое каждый день.63 м² под одной крышей — всё необходимое здесь. Двухэтажная просторная планировка разграничивает спальные и дневные помещения. В качестве кровли использована ондулин — материал, проверенный временем. Дом спроектирован в духе дома в классическом стиле.Характеристики
- Общая площадь: 31 м2
- Количество этажей: 1
- Стиль, разновидность: Дома в стиле Русский
- Форма: Прямоугольные дома
- Тип кровли: Дома с двускатной крышей
- Отделка: Без отделки







