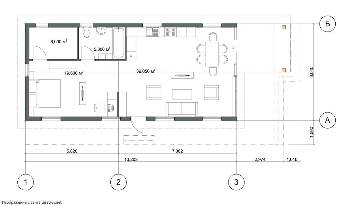
Проект одноэтажного дома Сакраменто
Площадь
80 м 2
Размер дома:
13x6
Этажей:
1
Спален:
2
Санузел:
0
Гараж:
Нет
Баня:
Нет
Терраса:
Нет
Панорамные окна:
Нет
Мастер-спальня:
Нет
О проекте
В проекте использованы экологичные и безопасные материалы.Чёткая логика планировки на 300 м². Дом спроектирован в духе дома в стиле модерн. В доме предусмотрено 4 спальни, что важно для комфорта. Четырёхэтажная уютная планировка разграничивает спальные и дневные помещения.Характеристики
- Общая площадь: 80 м2
- Количество этажей: 1
- Стиль, разновидность: Дома в ином стиле
- Форма: Прямоугольные дома
- Тип кровли: Дома с двускатной крышей
- Отделка: Без отделки
- Размер: 13x6
Отправьте свои контакты и мы расчитаем вам смету
Скорее всего вам подойдут следующие проекты домов:
Дом подходит для:
Дом подходит для:
Дом подходит для:











